Capannone in vendita

Campagnola Cremasca, Via Galileo Galilei
€ 250.000
7 locali 7 locali
556 Mq 556 Mq
3 bagni 3 bagni

Capannone in vendita

Campagnola Cremasca, Via Galileo Galilei

Descrizione annuncio

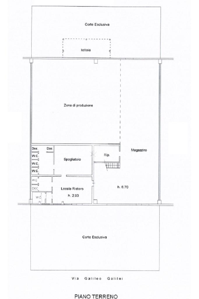
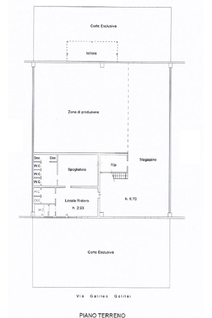
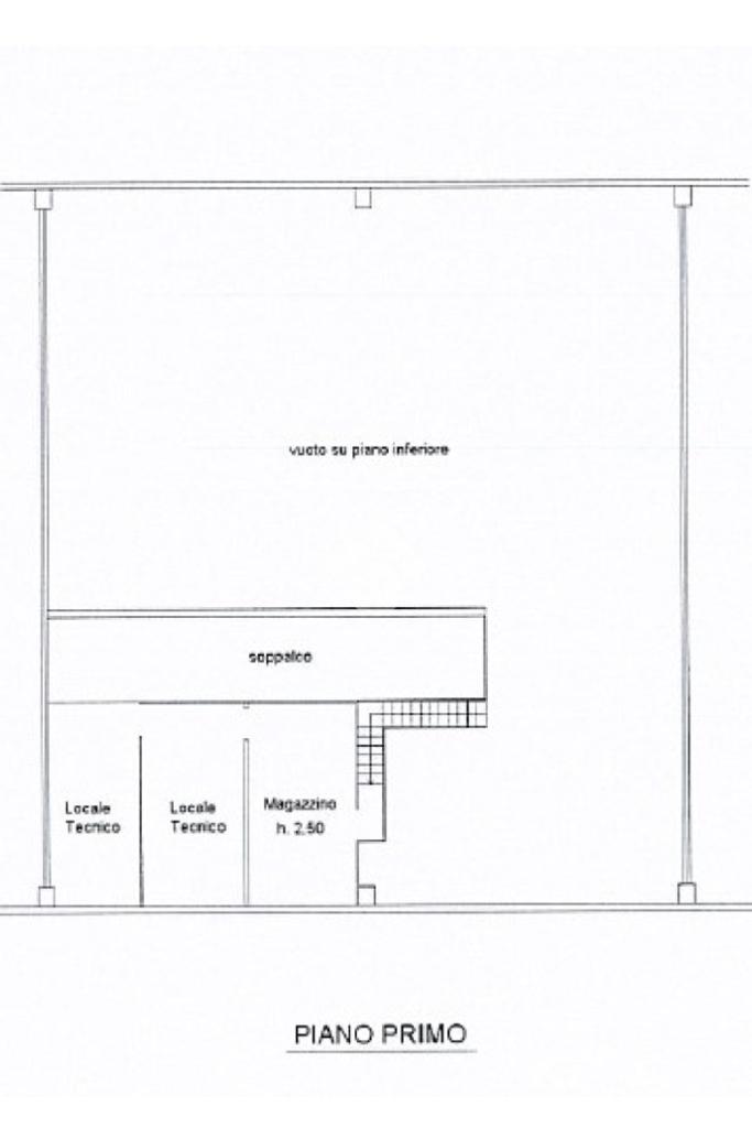
Proponiamo in vendita un opificio di 556 mq coperti con ampie superfici distribuite su piano terra e primo piano, progettato per garantire funzionalità, sicurezza e comfort. L’immobile, edificato negli anni 2000, dispone di altezza interna di 7,5 m e accesso tramite un portone 5x5 m, ideale per attività produttive, logistiche o artigianali. Completa la proprietà un’area esterna di circa 350 mq, pronta all’uso fin da subito.

Caratteristiche principali

Superficie coperta totale: 556 mq

Piano terra: 460 mq

Primo piano: 96 mq

Area esterna: circa 350 mq

Altezza capannone: 7,5 m

Altezza sottotrave: 6,5 m

Accesso carraio: uno

Camera bianca presente

Portone: 1 portone 5x5 m

Servizi: 3 bagni, 3 docce

Posti auto esterni: 5

Riscaldamento e condizionamento: autonomi

Sicurezza: porta tagliafuoco, uscita di emergenza, predisposizione luci di emergenza, videosorveglianza, impianto di allarme

Dotazioni aggiuntive: aria compressa, reception

Proprietà: recintata

Stato di manutenzione: ottimo, immediatamente fruibile

Ubicazione e contesto
L’immobile è situato in Via Galileo Galilei, Campagnola Cremasca, in una zona produttiva strategica e ben collegata ai principali assi viari e autostradali. La posizione garantisce comodità di accesso per trasporti, fornitori e clienti. Nelle vicinanze si trovano servizi commerciali e infrastrutture utili per attività industriali o artigianali. Il contesto è funzionale, sicuro e pronto per essere operativo, ideale per aziende che cercano un opificio completo, tecnologicamente attrezzato e ben posizionato.

Mostra tutto

Nelle vicinanze

Scuole Scuole
Dipartimento di Informatica - Sede di Crema
2,2 Km
Scuole
2,6 Km
Elementare
2,7 Km
Materna
2,8 Km
Scuola Primaria  "Braguti"
2,9 Km
Farmacia Farmacia
Farmacia San Pancrazio
900 m
Farmacia Santa Maria della Croce
2,8 Km
Supermercati Supermercati
Supermercati
2,8 Km
Famila
2,8 Km
Negozi Negozi
Negozi
2,5 Km
Bar Bar
S.Stefano
1,4 Km
Bar
2,1 Km
30 e Lode
2,4 Km
Sombrero
2,8 Km
Sottovento
3,0 Km
Ristoranti Ristoranti
Pizzeria GuadalCanal
1,6 Km
Il Fante
1,6 Km
Santa Lucia
2,3 Km
La Villetta
2,8 Km
Trattoria Ferriera
3,0 Km
Mostra tutto

Caratteristiche

Rif.:
61139326
Totale piani:
2
Posti auto:
5
Condizionamento:
Autonomo
Ascensore:
No
Riscaldamento:
Autonomo
Mostra tutto
Prezzo Prezzo
€ 250.000
Rata mutuo Rata mutuo
€ 1.168 / mese
Spese annue Spese annue
€ 0
Proponi il tuo prezzoProponi il tuo prezzo

Altre caratteristiche

Descrizione dei locali
Bagno antibagno

Classe Energetica

G
G
G
G
G
G
G
G
G
EP globale non rinnovabile:
397.39 kW h/m² anno
EP globale rinnovabile:
11.97 kW h/m² anno
EP invernale del fabbricato:
EP estiva del fabbricato:
Anno di costruzione:
2005
Riscaldamento:
Autonomo
Tipo impianto:
Ad aria
Tipo alimentazione:
Aria

Ti interessa visionare l'immobile?

Fissa un appuntamento  Fissa un appuntamento

Richiedi informazioni

Clicca su Leggi per aprire l'informativa
* Questi campi sono obbligatori

Calcola il tuo mutuo

Semplice e senza impegno
Anticipo

( % )
Mutuo

( % )

pochi semplici passi

inserisci i tuoi dati
Questionario completato
Grazie per aver richiesto un appuntamento senza impegno con un nostro Consulente del Credito e Assicurativo.

Hai inserito correttamente tutti i dati necessari e a breve riceverai una e-mail con un link da convalidare per inviare i tuoi dati.
Affiliato
Industriale Crema Srl
Viale Alcide De Gasperi, 57/A 26013 Crema (CR)

Il nostro staff


  • Cristiano Cerioli
    Collaboratore

  • Tommaso Fiorentino
    Collaboratore

  • Nicola Gervasi
    Affiliato

  • Andrea Gatti
    Affiliato

  • Salwa El Fares
    Collaboratrice

  • Jacopo Piloni
    Collaboratore

  • Federica Scarpa
    Coordinatrice

  • Valentina Sozzi
    Coordinatrice

  • Claudio Valecci
    Affiliato

  • Francesca Lanzini
    Affiliata
Viale Alcide De Gasperi, 57/A 26013 Crema (CR)
Zona: Crema
Mostra su mappa
Affiliato
Industriale Crema Srl
Viale Alcide De Gasperi, 57/A 26013 Crema (CR)

2026 Tecnocasa Franchising S.p.A. - P. IVA 08365160152 - Via Monte Bianco 60/A 20089 Rozzano (MI). Ogni agenzia ha un proprio titolare ed è autonoma. Privacy policy | Policy utilizzo | Cookie policy