Capannone in affitto

Capergnanica, Via Tesino
€ 7.000 / mese
Prezzo aggiornato
2 locali 2 locali
2430 Mq 2430 Mq
8 bagni 8 bagni

Capannone in affitto

Capergnanica, Via Tesino

Descrizione annuncio

INTRODUZIONE

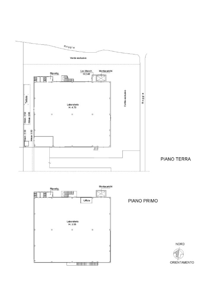
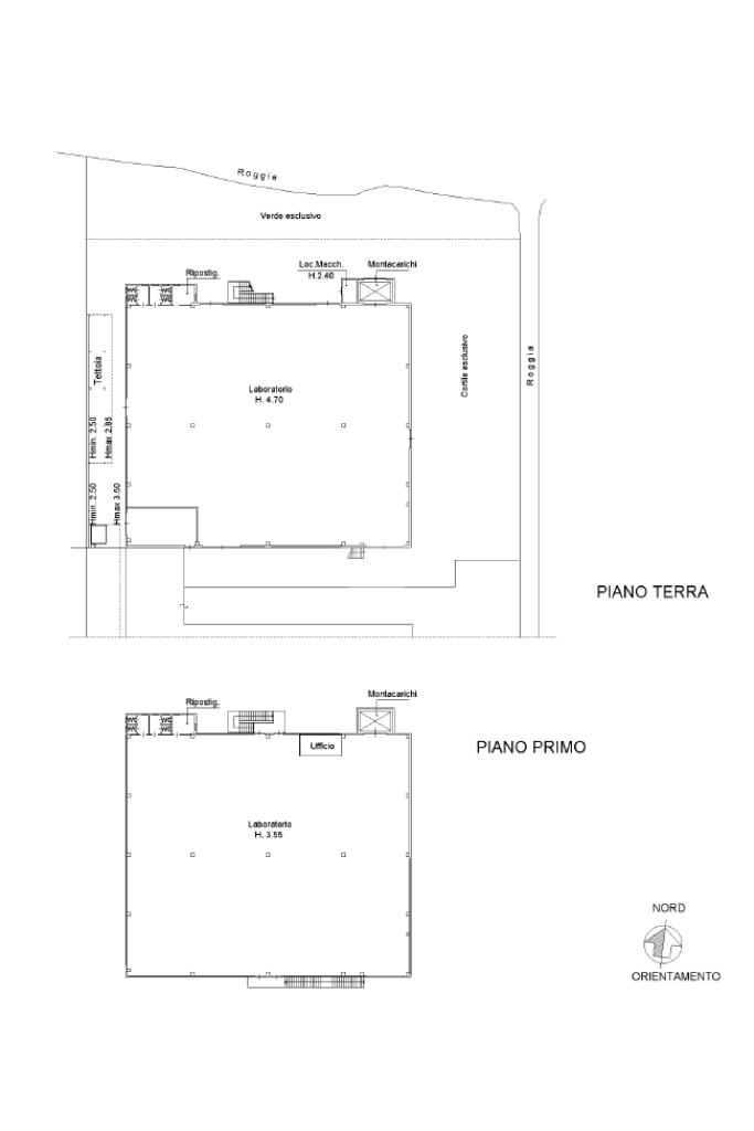
In posizione strategica a Capergnanica, proponiamo in affitto un ampio capannone di 2.430 m², ideale per attività produttive, logistiche o direzionali. Il suo punto di forza è la generosa superficie distribuita su due livelli, servita da montacarichi ad alta portata, che assicura massima efficienza e flessibilità operativa.

CARATTERISTICHE DELL’IMMOBILE

Superficie totale: 2.430 m²

1.215 m² piano terra

1.215 m² piano primo

Area esterna: 785 m² completamente recintata

Anno di costruzione: 2000

Altezze interne:

Piano terra: altezza al colmo 5,50 m – sottotrave 4,70 m

Piano primo: sottotrave 3,55 m

Accessi e movimentazione:

1 accesso carraio

Montacarichi con portata 5.100 kg

Servizi e locali accessori:

8 servizi igienici

Doccia e spogliatoio

Area reception

Dotazioni impiantistiche:

Predisposizione per riscaldamento

Impianto elettrico

Impianto di allarme e videosorveglianza

Luci di emergenza

Porta tagliafuoco e uscita di emergenza

Cablatura rete dati

Parcheggi: 10 posti auto esterni

Dimensioni del fabbricato: larghezza 37,70 m – lunghezza 32,25 m

UBICAZIONE E CONTESTO

L’immobile è situato a Capergnanica, in Via Tesino, all’interno di un’area produttiva facilmente raggiungibile e ben servita dalla viabilità principale. La posizione risulta strategica per attività che richiedono spazi ampi, accessibilità ai mezzi pesanti e collegamenti rapidi verso i comuni limitrofi.
Il contesto circostante è caratterizzato da insediamenti artigianali e commerciali, che garantiscono un ambiente professionale e dinamico. L’ampia area esterna recintata, unita ai parcheggi dedicati, offre comodità sia per i dipendenti sia per le operazioni logistiche quotidiane.

Mostra tutto

Nelle vicinanze

Trasporto pubblico Trasporto pubblico
Trasporto pubblico
530 m
Rampazzini
Rampazzini
2,2 Km
Scuole Scuole
scuola elementare ANGELO MORSENTI
400 m
Scuole
1,7 Km
Scuola Secondaria di Primo Grado Alfredo Galmozzi
2,1 Km
INFANZIA PARITARIA “Ombriano”
2,2 Km
Scuola Primaria Gianni Rodari
2,6 Km
Farmacia Farmacia
Dottor Tirloni
350 m
Farmacia
2,4 Km
Supermercati Supermercati
Alimentari Madonini
2,0 Km
La Girandola
3,0 Km
Negozi Negozi
Patrini
420 m
GI & GI
1,8 Km
La Dispensa
2,2 Km
Singolare
2,2 Km
La Casa del Pane
2,3 Km
Bar Bar
Circolo MCL
230 m
Tommy's
360 m
Demy
1,8 Km
ARCI Ombriano
2,0 Km
Bar
2,1 Km
Ristoranti Ristoranti
Pizzeria Doppio Zero
260 m
Ristorante Trattoria Rosetta
1,6 Km
Osteria del Chiurlo
1,7 Km
Trattoria di Campagna
1,8 Km
Cascina Lorenza
1,8 Km
Mostra tutto

Caratteristiche

Rif.:
61147710
Piano:
Terra di 2
Totale piani:
2
Posti auto:
10
Condizionamento:
Assente
Ascensore:
No
Mostra tutto
Prezzo Prezzo
€ 7.000 / mese
Spese annue Spese annue
€ 0

Altre caratteristiche

Descrizione dei locali
Bagno antibagno

Classe Energetica

Questo immobile è esente da classe energetica
Anno di costruzione:
2000
Riscaldamento:
Autonomo
Tipo impianto:
Ad aria
Tipo alimentazione:
Aria

Prezzo ridotto di €1 (94%%)

Ti interessa visionare l'immobile?

Fissa un appuntamento  Fissa un appuntamento

Richiedi informazioni

Clicca su Leggi per aprire l'informativa
* Questi campi sono obbligatori
Affiliato
Industriale Crema Srl
Viale Alcide De Gasperi, 57/A 26013 Crema (CR)

Il nostro staff


  • Cristiano Cerioli
    Collaboratore

  • Tommaso Fiorentino
    Collaboratore

  • Nicola Gervasi
    Affiliato

  • Andrea Gatti
    Affiliato

  • Salwa El Fares
    Collaboratrice

  • Jacopo Piloni
    Collaboratore

  • Federica Scarpa
    Coordinatrice

  • Claudio Valecci
    Affiliato

  • Francesca Lanzini
    Affiliata
Viale Alcide De Gasperi, 57/A 26013 Crema (CR)
Zona: Crema
Mostra su mappa
Affiliato
Industriale Crema Srl
Viale Alcide De Gasperi, 57/A 26013 Crema (CR)

2026 Tecnocasa Franchising S.p.A. - P. IVA 08365160152 - Via Monte Bianco 60/A 20089 Rozzano (MI). Ogni agenzia ha un proprio titolare ed è autonoma. Privacy policy | Policy utilizzo | Cookie policy