Negozio in affitto

Castiglione D'Adda, Via Roma
€ 700 / mese
2 locali 2 locali
110 Mq 110 Mq
1 bagno 1 bagno

Negozio in affitto

Castiglione D'Adda, Via Roma

Descrizione annuncio

DESCRIZIONE E PARTICOLARITA'

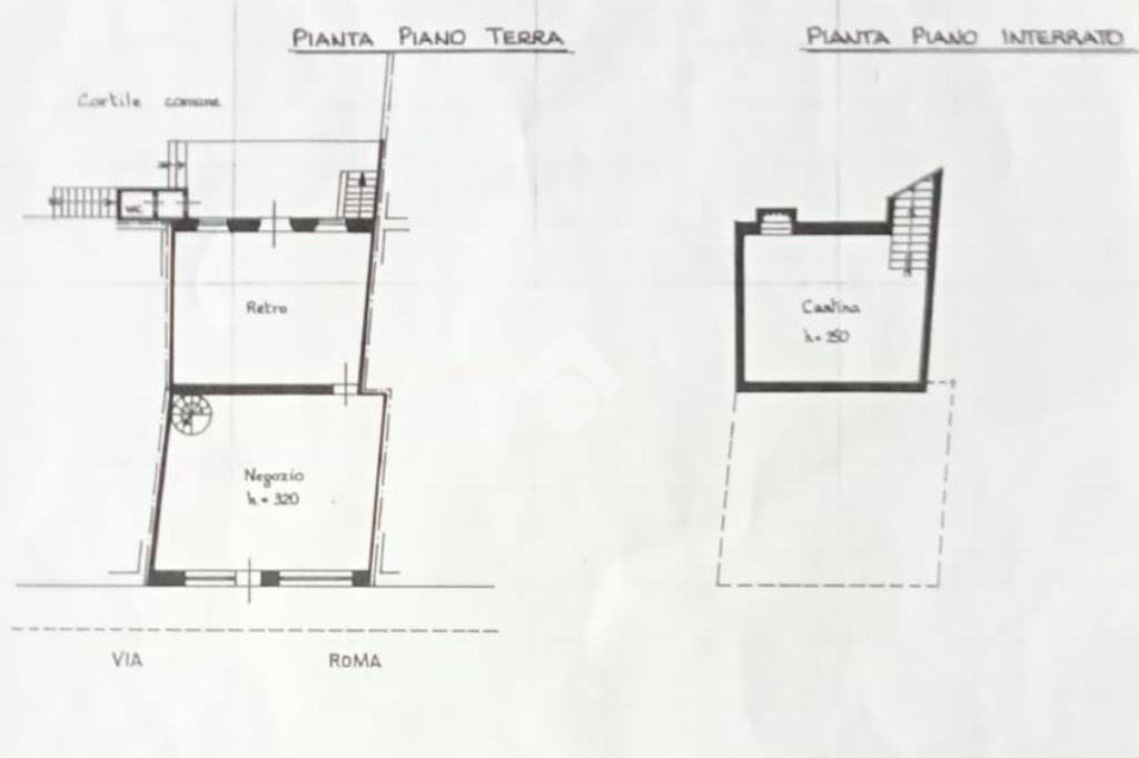
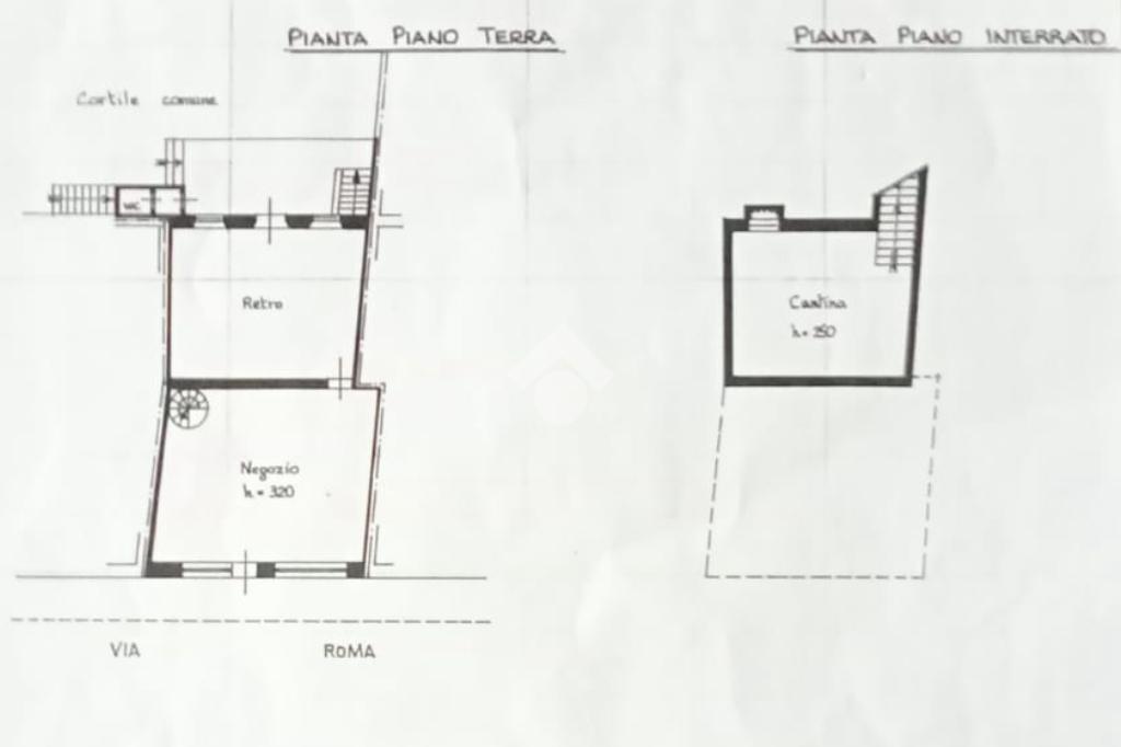
Proponiamo in affitto locale commerciale completamente arredato sito a Castiglione d'Adda, più precisamente in Via Roma.

Il locale si estende su una superficie di circa 110mq, di cui 75mq circa disposti su piano terra ad uso commerciale e circa 35mq al piano interrato ad uso deposito.

Caratteristiche:

- Superficie locale commerciale: 75mq;

- Superficie deposito: 35mq;

- Locale completamente arredato;

- Impianto di riscaldamento;

- Controsoffitto;

- Canna fumaria;

- Aspirazione fumi;

- Doppio affaccio;

- Due locali;

- Predisposizione al servizio igienico;

- Cablato.

UBICAZIONE E CONTESTO

Castiglione d'Adda è un comune italiano di 4 471 abitanti della provincia di Lodi in Lombardia.

Si trova a metà strada tra la città di Lodi e quella di Crema che distano circa venti minuti in auto.

Mostra tutto

Nelle vicinanze

Trasporto pubblico Trasporto pubblico
Trasporto pubblico
290 m
Scuole Scuole
Scuola elementare Castiglione D'adda
210 m
Scuola Media Statale "Fusari"
300 m
Scuole
320 m
Farmacia Farmacia
Farmacia Gandolfi
40 m
Farmacia Punzi
2,5 Km
Negozi Negozi
Katy & Mary
150 m
Negozi
690 m
Bar Bar
Bar
360 m
Ristoranti Ristoranti
La Colomba
2,6 Km
Mostra tutto

Caratteristiche

Rif.:
61036586
Piano:
Terra di 3
Totale piani:
3
Condizionamento:
Assente
Ascensore:
No
Riscaldamento:
Autonomo
Mostra tutto
Prezzo Prezzo
€ 700 / mese
Spese annue Spese annue
€ 0

Altre caratteristiche

Descrizione dei locali
Bagno antibagno

Classe Energetica

Questo immobile è esente da classe energetica
Anno di costruzione:
1970
Riscaldamento:
Autonomo
Tipo impianto:
A radiatori
Tipo alimentazione:
Aria

Ti interessa visionare l'immobile?

Fissa un appuntamento  Fissa un appuntamento

Richiedi informazioni

* Questi campi sono obbligatori
Affiliato
Industriale Crema Srl
Viale Alcide De Gasperi, 57/A 26013 Crema (CR)

Il nostro staff


  • Cristiano Cerioli
    Collaboratore

  • Luca Corno
    Collaboratore

  • Matteo Ferrari
    Collaboratore

  • Nicola Gervasi
    Affiliato

  • Andrea Gatti
    Affiliato

  • Toni Koshaj
    Collaboratore

  • Salwa El Fares
    Collaboratrice

  • Jacopo Piloni
    Collaboratore

  • Federica Scarpa
    Coordinatrice

  • Valentina Sozzi
    Coordinatrice

  • Claudio Valecci
    Affiliato

  • Francesca Lanzini
    Affiliata
Viale Alcide De Gasperi, 57/A 26013 Crema (CR)
Zona: Crema
Mostra su mappa
Affiliato
Industriale Crema Srl
Viale Alcide De Gasperi, 57/A 26013 Crema (CR)

2025 Tecnocasa Franchising S.p.A. - P. IVA 08365160152 - Via Monte Bianco 60/A 20089 Rozzano (MI). Ogni agenzia ha un proprio titolare ed è autonoma. Privacy policy | Policy utilizzo | Cookie policy