Capannone in affitto

Cavenago D'Adda, Via Ada Negri
1 locale 1 locale
715 Mq 715 Mq
2 bagni 2 bagni

Capannone in affitto

Cavenago D'Adda, Via Ada Negri

Descrizione annuncio

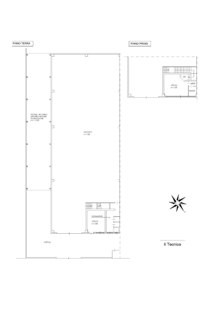
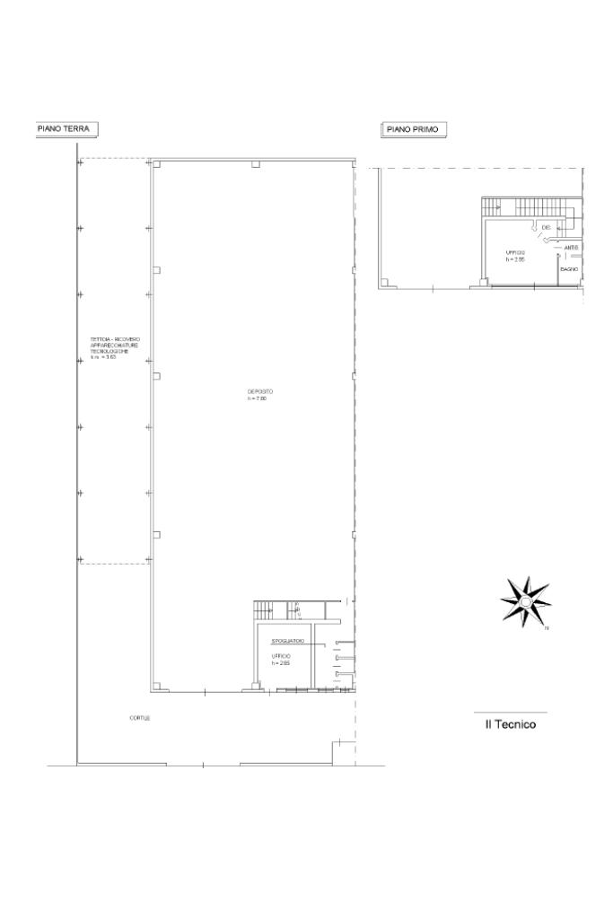
Proponiamo in vendita o locazione un capannone industriale moderno e ben attrezzato, ideale per attività produttive e logistiche. La presenza di carroponte, uffici già predisposti, impianti funzionanti e un’ampia area esterna rende l’immobile pronto all’uso e altamente funzionale.

Caratteristiche principali

Superficie totale: 690 mq ad uso produttivo (piano terra) + 32 mq ad uso uffici (piano primo)

Area esterna: circa 280 mq

Altezze: 8,76 m al colmo – 6,90 m sottotrave

Dimensioni capannone: larghezza 17,5 m – lunghezza 36,56 m

Ingressi: 2 accessi carrai con 2 portoni (4,5 x 4 m)

Spazi accessori: reception, uffici, spogliatoio, 2 bagni e 2 docce

Impianti e dotazioni:

Riscaldamento e condizionamento autonomi

Carroponte e mensole predisposte

Impianto elettrico da 40 kW

Impianto di illuminazione

Impianto di allarme

Cablaggio rete dati

Sicurezza: proprietà completamente recintata

Ubicazione e contesto

L’immobile è situato in via Negri a Cavenago d’Adda, in un’area a vocazione industriale ben collegata alle principali arterie stradali della zona. La posizione strategica facilita la logistica e il trasporto merci, mentre il contesto circostante, caratterizzato da altre realtà produttive, valorizza ulteriormente l’investimento. La presenza di un’area esterna di 280 mq offre ulteriori possibilità operative, rendendo questa soluzione ideale per aziende che cercano spazi ampi, funzionali e già pronti per l’attività.

Mostra tutto

Nelle vicinanze

Trasporto pubblico Trasporto pubblico
Cavenago d’Adda, v.le Italia
Cavenago d’Adda, v.le Italia
560 m
Cavenago d’Adda, p.za Carabinieri
Cavenago d’Adda, p.za Carabinieri
960 m
Scuole Scuole
Scuola elementare
620 m
Scuola materna
900 m
Scuole
1,4 Km
Farmacia Farmacia
Farmacia
960 m
Negozi Negozi
Chez Claude
510 m
Mini Market
910 m
Il Botteghino
1,4 Km
Ristoranti Ristoranti
La Speranza
910 m
Dal Baffo
930 m
Trattoria dell'Antica Barca
970 m
Darfani
1,7 Km
A Casa Nostra
1,7 Km
Mostra tutto

Caratteristiche

Rif.:
61117611
Piano:
2 di 2 (Piano terra)
Posti auto:
10
Condizionamento:
Autonomo
Ascensore:
No
Riscaldamento:
Autonomo
Mostra tutto
Prezzo Prezzo
€ 2.700 / mese
Spese annue Spese annue
€ 0
Anche in vendita a

Altre caratteristiche

Descrizione dei locali
Bagno antibagno

Classe Energetica

Questo immobile è esente da classe energetica
Anno di costruzione:
2000
Riscaldamento:
Autonomo
Tipo impianto:
Ad aria
Tipo alimentazione:
Aria

Ti interessa visionare l'immobile?

Fissa un appuntamento  Fissa un appuntamento

Richiedi informazioni

* Questi campi sono obbligatori
Affiliato
Industriale Crema Srl
Viale Alcide De Gasperi, 57/A 26013 Crema (CR)

Il nostro staff


  • Cristiano Cerioli
    Collaboratore

  • Luca Corno
    Collaboratore

  • Matteo Ferrari
    Collaboratore

  • Nicola Gervasi
    Affiliato

  • Andrea Gatti
    Affiliato

  • Toni Koshaj
    Collaboratore

  • Salwa El Fares
    Collaboratrice

  • Jacopo Piloni
    Collaboratore

  • Federica Scarpa
    Coordinatrice

  • Valentina Sozzi
    Coordinatrice

  • Claudio Valecci
    Affiliato

  • Francesca Lanzini
    Affiliata
Viale Alcide De Gasperi, 57/A 26013 Crema (CR)
Zona: Crema
Mostra su mappa
Affiliato
Industriale Crema Srl
Viale Alcide De Gasperi, 57/A 26013 Crema (CR)

2025 Tecnocasa Franchising S.p.A. - P. IVA 08365160152 - Via Monte Bianco 60/A 20089 Rozzano (MI). Ogni agenzia ha un proprio titolare ed è autonoma. Privacy policy | Policy utilizzo | Cookie policy