Capannone in vendita

Codogno, Via Pedrazzini Guaitamacchi
€ 450.000
4 locali 4 locali
3000 Mq 3000 Mq
2 bagni 2 bagni

Capannone in vendita

Codogno, Via Pedrazzini Guaitamacchi

Descrizione annuncio

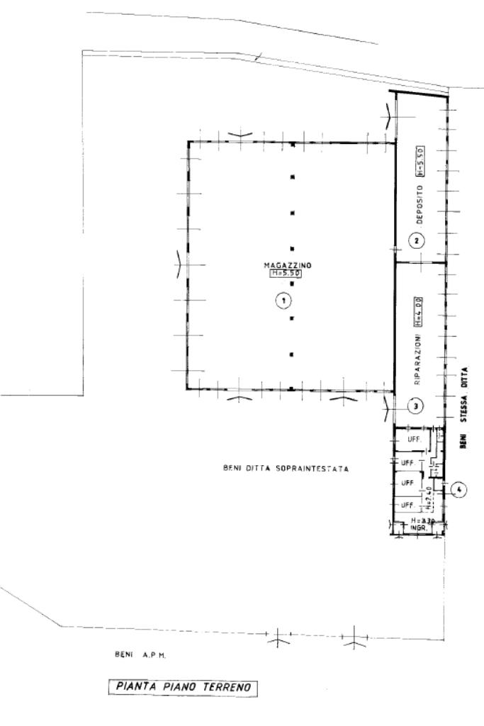
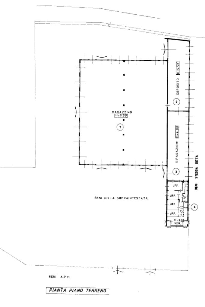
PARTICOLARITA' E DESCRIZIONE

L'immobile che vi proponiamo in vendita è ubicato a Codogno, più precisamente in Via Pedrazzini Guaitamacchi. L'unità si estende su un lotto totale di 7000mq circa; su cui si sviluppa il fabbricato con una superficie di circa 3000mq, di cui 300mq circa destinati ad una zona uffici, a completare la proprietà un’area esterna di circa 4000mq ad uso esclusivo.

La soluzione è completamente recintata, è dotata di tre accessi carrai indipendenti ed è priva di pilastri.

Caratteristiche:

- Altezza sottotrave: 5m;

- Larghezza: 40m;

- Lunghezza: 49m;

- Quattro portoni;

- Altezza portoni: 4m;

- Due servizi igienici;

- Spogliatoio;

- Impianto elettrico e di illuminazione;

- Impianto di raffreddamento;

- Impianto di allarme;

- Videosorveglianza;

- Proprietà recintata;

- Posti auto esterni;

- Cablato;

UBICAZIONE E CONTESTO

Codogno è un comune italiano di 15.674 abitanti della provincia di Lodi in Lombardia, il secondo per popolazione. È il comune principale del Basso Lodigiano ed è il centro di riferimento per un'area di circa 90.000 abitanti.

E' collocata in posizione strategica lungo le principali arterie di comunicazione che percorrono l'asse nord-sud del nostro territorio.

Infatti, percorrendo la Via Emilia, che tuttora segue il tracciato dell'antica via romana, o l'Autostrada A1, è possibile partire da Milano, dalla quale Codogno dista circa 60 km, passare dal capoluogo lodigiano, dalla città di Codogno, facilmente raggiungibile dall'uscita al casello autostradale di Casalpusterlengo, e giungere infine alla città di Piacenza, distante soli 12 km, dopo aver valicato le acque del Po - Codogno è anche in posizione strategica per poter raggiungere tutte le altre grandi città del territorio: dista infatti solamente 45 km da Pavia e 28 da Cremona.

Mostra tutto

Nelle vicinanze

Trasporto pubblico Trasporto pubblico
stazione di Codogno
stazione di Codogno
1,7 Km
Scuole Scuole
Istituto Tecnico Agrario Statale "Antonio Tosi"
750 m
Scuola Secondaria "Ognissanti"
930 m
IPSIA "G. Ambrosoli"
950 m
Scuola Primaria "Anna Vertua Gentile"
960 m
Istituto Tecnico Commerciale Statale "Pietro Calamandrei"
1,2 Km
Farmacia Farmacia
Farmacia Navilli
1,0 Km
Farmacia Scacchi
1,1 Km
Farmacia Mocchi
1,1 Km
Farmacia San Biagio
1,8 Km
Ospedali Ospedali
Ospedale Civico di Codogno
890 m
Supermercati Supermercati
Famila
620 m
Conad
850 m
Lidl
1,7 Km
Foppa
2,3 Km
Supermercati
2,8 Km
Bar Bar
Isola
740 m
Bar Roberto
830 m
Bar
840 m
Bar del cane
920 m
L'Angolo
930 m
Ristoranti Ristoranti
Ristorante Pizzeria Nord-Est
720 m
Park Club
940 m
il Gambero
1,3 Km
Mostra tutto

Caratteristiche

Rif.:
60985711
Piano:
Terra di 1
Totale piani:
1
Posti auto:
20
Condizionamento:
Centralizzato
Ascensore:
No
Mostra tutto
Prezzo Prezzo
€ 450.000
Rata mutuo Rata mutuo
€ 2.074 / mese
Spese annue Spese annue
€ 0
Proponi il tuo prezzoProponi il tuo prezzo

Altre caratteristiche

Descrizione dei locali
Bagno antibagno

Classe Energetica

Questo immobile è esente da classe energetica
Anno di costruzione:
1969
Riscaldamento:
Assente

Ti interessa visionare l'immobile?

Fissa un appuntamento  Fissa un appuntamento

Richiedi informazioni

* Questi campi sono obbligatori

Calcola il tuo mutuo

Semplice e senza impegno
Anticipo

( % )
Mutuo

( % )

pochi semplici passi

inserisci i tuoi dati
Questionario completato
Grazie per aver richiesto un appuntamento senza impegno con un nostro Consulente del Credito e Assicurativo.

Hai inserito correttamente tutti i dati necessari e a breve riceverai una e-mail con un link da convalidare per inviare i tuoi dati.
Affiliato
Industriale Crema Srl
Viale Alcide De Gasperi, 57/A 26013 Crema (CR)

Il nostro staff


  • Cristiano Cerioli
    Collaboratore

  • Luca Corno
    Collaboratore

  • Matteo Ferrari
    Collaboratore

  • Nicola Gervasi
    Affiliato

  • Andrea Gatti
    Affiliato

  • Toni Koshaj
    Collaboratore

  • Salwa El Fares
    Collaboratrice

  • Jacopo Piloni
    Collaboratore

  • Federica Scarpa
    Coordinatrice

  • Valentina Sozzi
    Coordinatrice

  • Claudio Valecci
    Affiliato

  • Francesca Lanzini
    Affiliata
Viale Alcide De Gasperi, 57/A 26013 Crema (CR)
Zona: Crema
Mostra su mappa
Affiliato
Industriale Crema Srl
Viale Alcide De Gasperi, 57/A 26013 Crema (CR)

2025 Tecnocasa Franchising S.p.A. - P. IVA 08365160152 - Via Monte Bianco 60/A 20089 Rozzano (MI). Ogni agenzia ha un proprio titolare ed è autonoma. Privacy policy | Policy utilizzo | Cookie policy