Negozio in affitto

Codogno, Via Vittorio Emanuele II
€ 2.250 / mese
Prezzo aggiornato
4 locali 4 locali
190 Mq 190 Mq
3 bagni 3 bagni

Negozio in affitto

Codogno, Via Vittorio Emanuele II

Descrizione annuncio

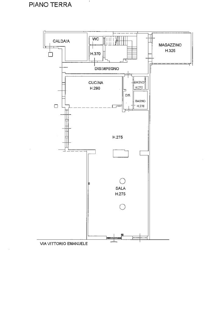
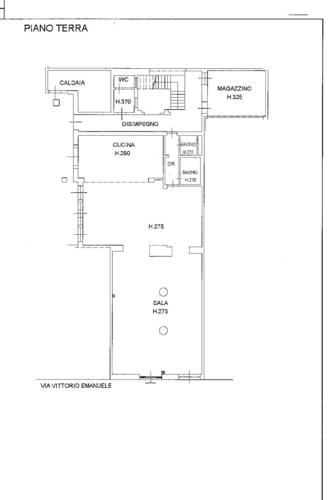
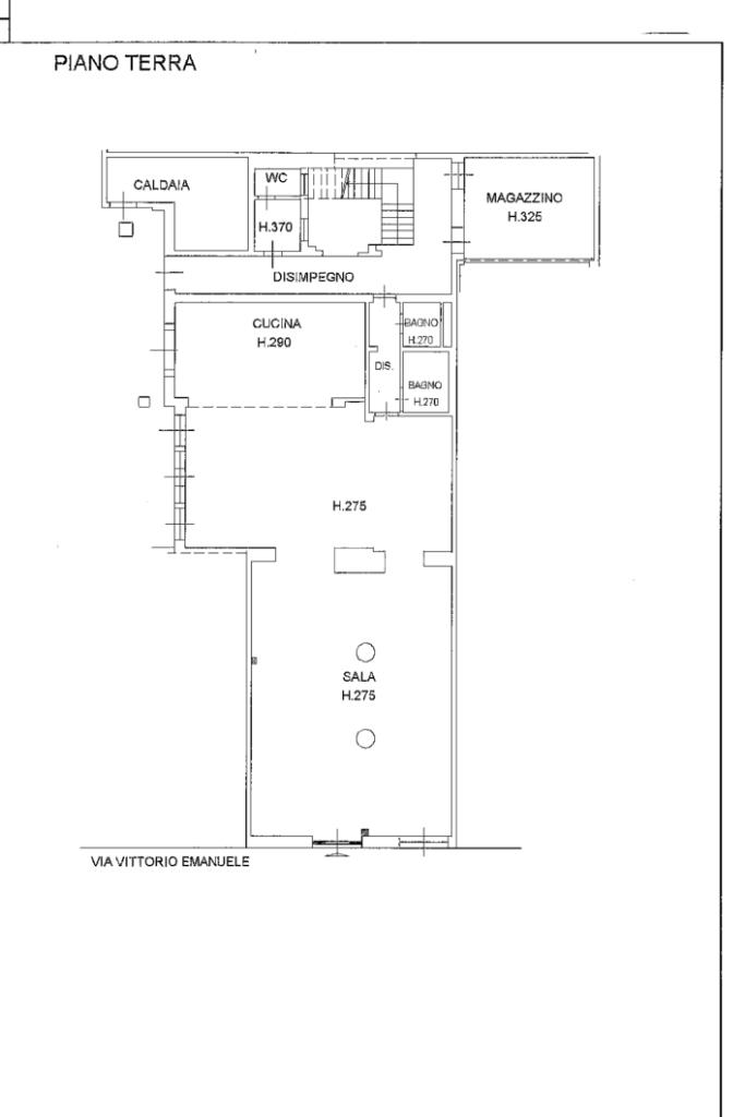
Proponiamo in affitto un ampio negozio di 190 mq al piano terra, recentemente ristrutturato nel 2021, ideale per attività commerciali o uffici che necessitano di spazi funzionali e ben distribuiti. Il punto di forza principale è la combinazione tra visibilità su strada e la comodità dei 15 posti auto esterni, che garantiscono accessibilità e praticità per clienti e personale.

Caratteristiche principali:

Superficie: 190 mq

Piano: terra, con accesso diretto dalla strada

Locali: 4 ambienti + spogliatoio + servizio igienico a norma per disabili

Altezza interna: 3 m

Vetrine: 1 fronte strada, con serranda manuale

Impianti: riscaldamento e condizionamento autonomi, impianto elettrico e illuminazione

Dotazioni: canna fumaria, uscita di emergenza, accesso per disabili, infissi in acciaio, due serrande manuali

Parcheggio: 15 posti auto esterni

Stato: edificio anni ’80, ristrutturato nel 2021, pronto all’uso

Contesto e posizione
L’immobile è situato a Codogno, in via Vittorio Emanuele II, una posizione strategica con ottima visibilità e passaggio. La zona è servita da attività commerciali, servizi, mezzi pubblici e collegamenti principali, garantendo un contesto funzionale e dinamico. La presenza di parcheggi esterni rende l’accesso comodo per clienti e personale, rendendo questo locale una soluzione ideale per diverse tipologie di attività.

Mostra tutto

Nelle vicinanze

Trasporto pubblico Trasporto pubblico
stazione di Codogno
stazione di Codogno
980 m
Trasporto pubblico
2,6 Km
Scuole Scuole
Scuola Primaria "Anna Vertua Gentile"
310 m
IPSIA "G. Ambrosoli"
320 m
Scuola Secondaria "Ognissanti"
380 m
Scuola media Piera Andreoli
610 m
Scuola dell'Infanzia e Primaria "San Biagio"
780 m
Farmacia Farmacia
Farmacia Scacchi
500 m
Farmacia Navilli
520 m
Farmacia Mocchi
690 m
Farmacia San Biagio
700 m
Ospedali Ospedali
Ospedale Civico di Codogno
1,2 Km
Supermercati Supermercati
Conad
390 m
Lidl
570 m
Famila
1,1 Km
Foppa
1,6 Km
Supermercati
1,7 Km
Bar Bar
Osteria della noce
20 m
Ramage
140 m
Bar Roberto
440 m
Isola
510 m
Bar Centrale
520 m
Ristoranti Ristoranti
il Gambero
190 m
Park Club
710 m
Ristorante Pizzeria Nord-Est
800 m
La Veranda
2,9 Km
Mostra tutto

Caratteristiche

Rif.:
61119076
Piano:
Medio di 2
Totale piani:
2
Condizionamento:
Autonomo
Ascensore:
No
Riscaldamento:
Autonomo
Mostra tutto
Prezzo Prezzo
€ 2.250 / mese

Altre caratteristiche

Descrizione dei locali
Bagno antibagno

Classe Energetica

D
D
D
D
D
D
D
D
D
EP globale non rinnovabile:
712.68 kW h/m² anno
EP globale rinnovabile:
24.64 kW h/m² anno
EP invernale del fabbricato:
EP estiva del fabbricato:
Anno di costruzione:
1960
Riscaldamento:
Autonomo
Tipo impianto:
Ad aria
Tipo alimentazione:
Aria

Prezzo ridotto di €1 (92%%)

Ti interessa visionare l'immobile?

Fissa un appuntamento  Fissa un appuntamento

Richiedi informazioni

* Questi campi sono obbligatori
Affiliato
Industriale Crema Srl
Viale Alcide De Gasperi, 57/A 26013 Crema (CR)

Il nostro staff


  • Cristiano Cerioli
    Collaboratore

  • Luca Corno
    Collaboratore

  • Matteo Ferrari
    Collaboratore

  • Nicola Gervasi
    Affiliato

  • Andrea Gatti
    Affiliato

  • Toni Koshaj
    Collaboratore

  • Salwa El Fares
    Collaboratrice

  • Jacopo Piloni
    Collaboratore

  • Federica Scarpa
    Coordinatrice

  • Valentina Sozzi
    Coordinatrice

  • Claudio Valecci
    Affiliato

  • Francesca Lanzini
    Affiliata
Viale Alcide De Gasperi, 57/A 26013 Crema (CR)
Zona: Crema
Mostra su mappa
Affiliato
Industriale Crema Srl
Viale Alcide De Gasperi, 57/A 26013 Crema (CR)

2025 Tecnocasa Franchising S.p.A. - P. IVA 08365160152 - Via Monte Bianco 60/A 20089 Rozzano (MI). Ogni agenzia ha un proprio titolare ed è autonoma. Privacy policy | Policy utilizzo | Cookie policy