Negozio in affitto

Crema, Via Cremona - San Bernardino
€ 950 / mese
Prezzo aggiornato
1 locale 1 locale
56 Mq 56 Mq
1 bagno 1 bagno

Negozio in affitto

Crema, Via Cremona - San Bernardino

Descrizione annuncio

Locale commerciale di nuova realizzazione in affitto – Crema, Via Cremona

Proponiamo locale commerciale open space di nuova costruzione, pensato per chi cerca uno spazio moderno, funzionale e altamente visibile. La vetrina fronte strada, unita all’altezza interna di 3,20 m, rappresenta il principale punto di forza dell’immobile, ideale per valorizzare qualsiasi attività commerciale o professionale.

Caratteristiche dell’immobile

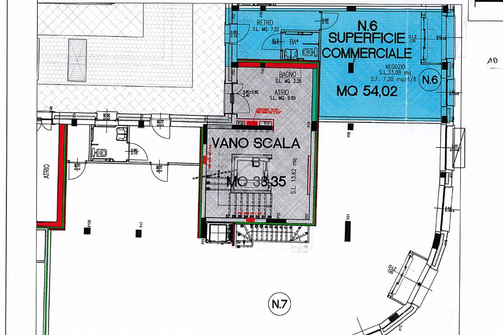
Superficie: 56 mq

Tipologia: locale commerciale open space

Stato: in costruzione – consegna prevista in circa 1 mese e mezzo

Altezza soffitti: 3,20 m

Una vetrina fronte strada

Doppio ingresso

Accesso per persone con disabilità

Servizio igienico a norma disabili

Porta blindata

Saracinesche automatiche

Riscaldamento e condizionamento autonomi

Ventilazione meccanica

Impianto elettrico e di illuminazione

Uscite e luci di emergenza

Locale cablato

Pavimentazione flottante

Possibilità di box auto

Numerosi posti auto esterni

Ubicazione e contesto

L’immobile è situato in Via Cremona, una delle principali direttrici di Crema, caratterizzata da forte visibilità e ottimo passaggio sia veicolare che pedonale. Il contesto è misto, con presenza di attività commerciali, servizi e aree residenziali, elemento che garantisce un bacino d’utenza consolidato. La zona è facilmente raggiungibile e ben collegata al centro città e alle principali vie di comunicazione, rendendo il locale particolarmente adatto a attività commerciali, studi professionali e servizi alla persona.

Mostra tutto

Nelle vicinanze

Trasporto pubblico Trasporto pubblico
stazione di Crema
stazione di Crema
490 m
Trasporto pubblico
810 m
De Gasperi SUD
De Gasperi SUD
2,0 Km
Ricariche auto elettriche Ricariche auto elettriche
Via Piacenza
1,5 Km
EnerCoop Centro Commerciale Gran Rondò
2,6 Km
Scuole Scuole
Liceo Scientifico Leonardo da Vinci
360 m
Liceo Classico Alessandro Racchetti
400 m
Scuola di Musica Claudio Monteverdi
710 m
Fondazione "Manziana"
720 m
Scuola Primaria Borgo San Pietro
750 m
Farmacia Farmacia
Dott. Vergine
20 m
dott. Bertolini
470 m
Farmacia Granata
800 m
Farmacia
910 m
Conte Negri
980 m
Ospedali Ospedali
Ospedale Maggiore di Crema
1,8 Km
Supermercati Supermercati
MD
450 m
Simply Market
1,2 Km
Lekkerland
1,4 Km
Simply
1,4 Km
Punto Zero
1,4 Km
Negozi Negozi
Dossena
340 m
Franca
510 m
Giòlina
530 m
Urban Style
530 m
Pelle e cuoio
540 m
Bar Bar
Bar
30 m
Babar
240 m
La Sangiovesa
340 m
Babaluba
430 m
Garibaldi
520 m
Ristoranti Ristoranti
Haki
350 m
Il Circolino
370 m
Trattoria Porta Serio
450 m
pizzaria los scolio
500 m
Amos Platz
610 m
Mostra tutto

Caratteristiche

Rif.:
61154423
Piano:
Terra di 3
Totale piani:
3
Box:
1
Posti auto:
15
Condizionamento:
Autonomo
Mostra tutto
Prezzo Prezzo
€ 950 / mese
Spese annue Spese annue
€ 0

Altre caratteristiche

Descrizione dei locali
Bagno antibagno

Classe Energetica

Questo immobile è esente da classe energetica
Anno di costruzione:
2026
Riscaldamento:
Autonomo
Tipo impianto:
Ad aria
Tipo alimentazione:
Aria

Prezzo ridotto di €1 (10%%)

Ti interessa visionare l'immobile?

Fissa un appuntamento  Fissa un appuntamento

Richiedi informazioni

Clicca su Leggi per aprire l'informativa
* Questi campi sono obbligatori
Affiliato
Industriale Crema Srl
Viale Alcide De Gasperi, 57/A 26013 Crema (CR)

Il nostro staff


  • Cristiano Cerioli
    Collaboratore

  • Tommaso Fiorentino
    Collaboratore

  • Nicola Gervasi
    Affiliato

  • Andrea Gatti
    Affiliato

  • Salwa El Fares
    Collaboratrice

  • Jacopo Piloni
    Collaboratore

  • Federica Scarpa
    Coordinatrice

  • Valentina Sozzi
    Coordinatrice

  • Claudio Valecci
    Affiliato

  • Francesca Lanzini
    Affiliata
Viale Alcide De Gasperi, 57/A 26013 Crema (CR)
Zona: Crema
Mostra su mappa
Affiliato
Industriale Crema Srl
Viale Alcide De Gasperi, 57/A 26013 Crema (CR)

2026 Tecnocasa Franchising S.p.A. - P. IVA 08365160152 - Via Monte Bianco 60/A 20089 Rozzano (MI). Ogni agenzia ha un proprio titolare ed è autonoma. Privacy policy | Policy utilizzo | Cookie policy