Negozio in vendita

Crema, Via Francesco Crispi
€ 350.000
7 locali 7 locali
150 Mq 150 Mq
2 bagni 2 bagni

Negozio in vendita

Crema, Via Francesco Crispi

Descrizione annuncio

DESCRIZIONE E PARTICOLARITA'

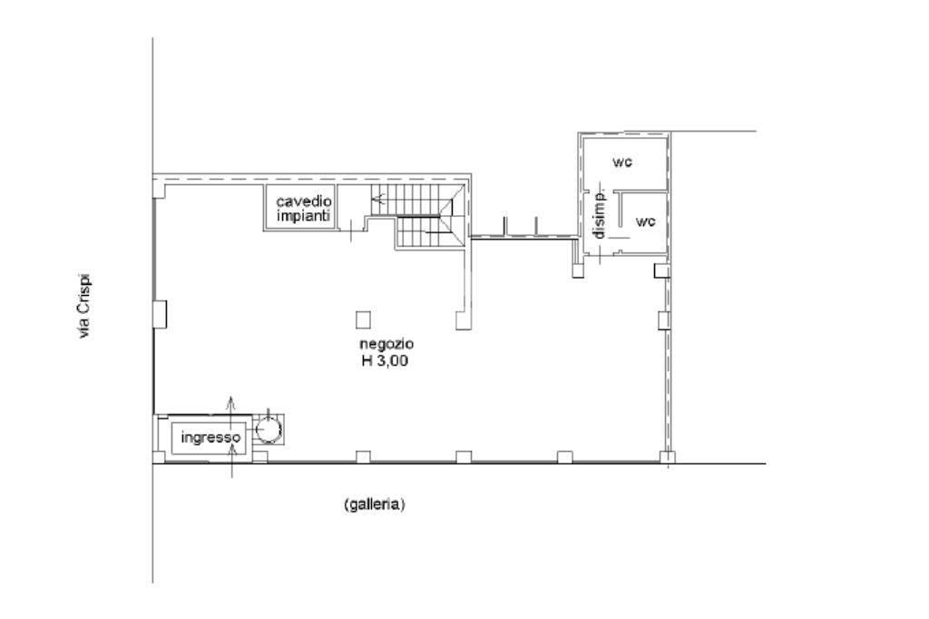
Proponiamo locale commerciale in vendita esclusivamente a reddito sito in centro a Crema, più precisamente in Via Francesco Crispi. La soluzione in oggetto è posizionata su una strada ad alto passaggio pedonale e veicolare; presenta sette vetrine ed è posizionata all'interno di una galleria.

Il locale si estende su una superficie totale di circa 150mq posti al piano terra; oltre ad ulteriori 60mq disposti su piano interrato ad uso deposito.

Caratteristiche principali:

- Superficie piano terra: 150mq;

- Deposito (piano interrato) 60mq;

- Predisposizione per impianto elettrico e di illuminazione;

- Predisposizione per videosorveglianza e impianto di allarme;

- Impianto di riscaldamento centralizzato;

- Impianto di raffreddamento autonomo;

- Altezza soffitto: 2,9m;

- Controllo accessi;

- Accesso disabili;

- Porta blindata;

- Infissi in acciaio;

- Ventilazione meccanica;

- Sette vetrine;

- Due servizi igienici (di cui uno a norma disabili);

- Spogliatoio;

- Internet banda larga;

- Uscita e luci di emergenza;

- Cablato.

UBICAZIONE E CONTESTO

Crema è un comune italiano di 33 713 abitanti della provincia di Cremona in Lombardia.

Negli ultimi anni in rapida espansione sia dal punto di vista edilizio e demografico, facilmente raggiungibile dai principali centri e a pochi km dal capoluogo.

Crema dista circa 40 km dalla città di Cremona, 18 km dalla città di Lodi e circa 45 km dalla città di Milano.

Mostra tutto

Nelle vicinanze

Trasporto pubblico Trasporto pubblico
stazione di Crema
stazione di Crema
1,2 Km
Trasporto pubblico
90 m
De Gasperi SUD
De Gasperi SUD
720 m
Ricariche auto elettriche Ricariche auto elettriche
Via Piacenza
860 m
EnerCoop Centro Commerciale Gran Rondò
1,3 Km
Scuole Scuole
Istituto tecnico Luca Pacioli
150 m
Scuola Media Alfredo Galmozzi
320 m
ISPE parrucchieri
500 m
Scuole
580 m
Centro Formazione Professionale
590 m
Farmacia Farmacia
Parafarmacia Crispi
40 m
Farmacia
320 m
Conte Negri
470 m
Farmacia Bruttomesso
500 m
Farmacia Granata
540 m
Ospedali Ospedali
Ospedale Maggiore di Crema
730 m
Supermercati Supermercati
Lekkerland
50 m
Punto Zero
120 m
LD Market
250 m
D PIù
410 m
Simply Market
460 m
Negozi Negozi
Eurosport
100 m
Costume
100 m
F.lli Mussi
120 m
Le Cose di Giava
140 m
Borderpoint
160 m
Bar Bar
Dolce Salato Cafè
70 m
Caffè del Convento
80 m
Beat Cafè
90 m
San Martino
100 m
Piccolo Bar
130 m
Ristoranti Ristoranti
Pechino
170 m
Speranza
170 m
Come una Volta
180 m
Mangiarsano
320 m
Rumì
400 m
Mostra tutto

Caratteristiche

Rif.:
60970483
Piano:
Terra di 3
Totale piani:
3
Condizionamento:
Autonomo
Ascensore:
No
Riscaldamento:
Centralizzato
Mostra tutto
Prezzo Prezzo
€ 350.000
Rata mutuo Rata mutuo
€ 1.635 / mese
Spese annue Spese annue
€ 5.000
Proponi il tuo prezzoProponi il tuo prezzo

Altre caratteristiche

Descrizione dei locali
Bagno antibagno

Classe Energetica

Questo immobile è esente da classe energetica
Anno di costruzione:
1980
Riscaldamento:
Centralizzato
Tipo impianto:
Ad aria
Tipo alimentazione:
Aria

Ti interessa visionare l'immobile?

Fissa un appuntamento  Fissa un appuntamento

Richiedi informazioni

Clicca su Leggi per aprire l'informativa
* Questi campi sono obbligatori

Calcola il tuo mutuo

Semplice e senza impegno
Anticipo

( % )
Mutuo

( % )

pochi semplici passi

inserisci i tuoi dati
Questionario completato
Grazie per aver richiesto un appuntamento senza impegno con un nostro Consulente del Credito e Assicurativo.

Hai inserito correttamente tutti i dati necessari e a breve riceverai una e-mail con un link da convalidare per inviare i tuoi dati.
Affiliato
Industriale Crema Srl
Viale Alcide De Gasperi, 57/A 26013 Crema (CR)

Il nostro staff


  • Cristiano Cerioli
    Collaboratore

  • Tommaso Fiorentino
    Collaboratore

  • Nicola Gervasi
    Affiliato

  • Andrea Gatti
    Affiliato

  • Salwa El Fares
    Collaboratrice

  • Jacopo Piloni
    Collaboratore

  • Federica Scarpa
    Coordinatrice

  • Valentina Sozzi
    Coordinatrice

  • Claudio Valecci
    Affiliato

  • Francesca Lanzini
    Affiliata
Viale Alcide De Gasperi, 57/A 26013 Crema (CR)
Zona: Crema
Mostra su mappa
Affiliato
Industriale Crema Srl
Viale Alcide De Gasperi, 57/A 26013 Crema (CR)

2026 Tecnocasa Franchising S.p.A. - P. IVA 08365160152 - Via Monte Bianco 60/A 20089 Rozzano (MI). Ogni agenzia ha un proprio titolare ed è autonoma. Privacy policy | Policy utilizzo | Cookie policy