Capannone in affitto

Gombito, Via S. Giuseppe
€ 1.500 / mese
13 locali 13 locali
590 Mq 590 Mq
3 bagni 3 bagni

Capannone in affitto

Gombito, Via S. Giuseppe

Descrizione annuncio

Capannone industriale con ampi spazi e uffici attrezzati – Gombito, Via San Giuseppe

Se cerchi una soluzione completa e funzionale per la tua attività, questo capannone industriale in affitto a Gombito è la scelta ideale. Con una superficie totale di 590 mq suddivisi su due piani e una comoda area esterna di 360 mq, l’immobile offre spazi versatili e ben organizzati, perfetti per accogliere sia la produzione che gli uffici amministrativi.

Caratteristiche principali

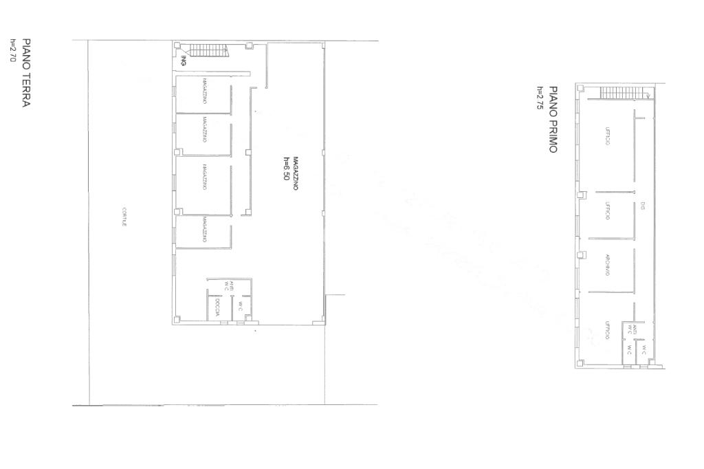
Superficie totale: 590 mq su due livelli

Primo piano: 185 mq capannone + 185 mq uffici

Secondo piano: 220 mq uffici

Area esterna: 360 mq

Dotazioni e dettagli tecnici:

13 locali complessivi

Capannone privo di impedimenti con altezza interna di 6,50 m

1 campata

1 portone (H 4,50 m – L 5,14 m)

3 servizi igienici e spogliatoio

Posti auto disponibili

Porta tagliafuoco, uscita di emergenza e luci di emergenza

Portineria e proprietà recintata

Impianti di illuminazione, riscaldamento e raffreddamento

Cablaggio già predisposto

Ubicazione e contesto

L’immobile si trova in Via San Giuseppe a Gombito, in una posizione strategica che garantisce facilità di accesso e visibilità. La zona è ben servita dalle principali vie di comunicazione e consente rapidi collegamenti con i centri limitrofi e le arterie stradali principali. La presenza di servizi, aree di parcheggio e attività produttive nelle vicinanze rende la soluzione particolarmente adatta ad aziende che cercano funzionalità, sicurezza e spazi già pronti all’uso.

Mostra tutto

Nelle vicinanze

Trasporto pubblico Trasporto pubblico
Trasporto pubblico
2,2 Km
Negozi Negozi
Civardi
1,3 Km
Cibus
1,4 Km
Bar Bar
Bar Baffo
1,4 Km
Ristoranti Ristoranti
Ristoranti
410 m
Gomedo
2,0 Km
Il Persicone
2,2 Km
Mostra tutto

Caratteristiche

Rif.:
61103114
Piano:
Terra di 2
Totale piani:
2
Posti auto:
10
Condizionamento:
Autonomo
Ascensore:
No
Mostra tutto
Prezzo Prezzo
€ 1.500 / mese
Spese annue Spese annue
€ 0

Altre caratteristiche

Descrizione dei locali
Bagno antibagno

Classe Energetica

Questo immobile è esente da classe energetica
Anno di costruzione:
2005
Riscaldamento:
Autonomo
Tipo impianto:
Ad aria
Tipo alimentazione:
Aria

Ti interessa visionare l'immobile?

Fissa un appuntamento  Fissa un appuntamento

Richiedi informazioni

* Questi campi sono obbligatori
Affiliato
Industriale Crema Srl
Viale Alcide De Gasperi, 57/A 26013 Crema (CR)

Il nostro staff


  • Cristiano Cerioli
    Collaboratore

  • Luca Corno
    Collaboratore

  • Matteo Ferrari
    Collaboratore

  • Nicola Gervasi
    Affiliato

  • Andrea Gatti
    Affiliato

  • Toni Koshaj
    Collaboratore

  • Salwa El Fares
    Collaboratrice

  • Jacopo Piloni
    Collaboratore

  • Federica Scarpa
    Coordinatrice

  • Valentina Sozzi
    Coordinatrice

  • Claudio Valecci
    Affiliato

  • Francesca Lanzini
    Affiliata
Viale Alcide De Gasperi, 57/A 26013 Crema (CR)
Zona: Crema
Mostra su mappa
Affiliato
Industriale Crema Srl
Viale Alcide De Gasperi, 57/A 26013 Crema (CR)

2025 Tecnocasa Franchising S.p.A. - P. IVA 08365160152 - Via Monte Bianco 60/A 20089 Rozzano (MI). Ogni agenzia ha un proprio titolare ed è autonoma. Privacy policy | Policy utilizzo | Cookie policy