Capannone in vendita

Guardamiglio, Via Ss9
€ 350.000
3 locali 3 locali
595 Mq 595 Mq
5 bagni 5 bagni

Capannone in vendita

Guardamiglio, Via Ss9

Descrizione annuncio

Opportunità di investimento a reddito: proponiamo in vendita un capannone commerciale moderno e funzionale, già locato e caratterizzato da un'interessante resa netta del 7,8%.

Caratteristiche dell’immobile

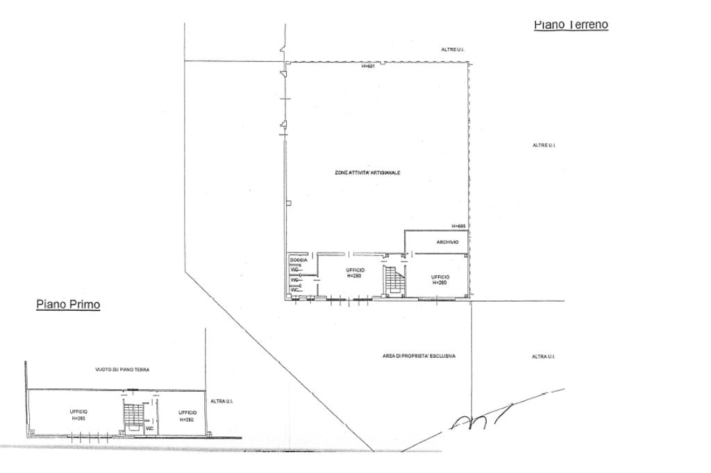
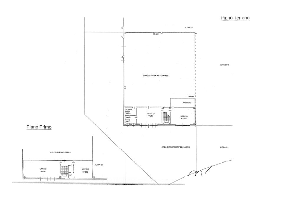
Superficie totale: circa 595 mq

425 mq ca. al piano terra ad uso produttivo

85 mq ca. al piano terra ad uso uffici

85 mq ca. al piano primo ad uso uffici

Anno di costruzione: 2009

Altezze interne: 8 m al colmo, 6,80 m sotto trave

Accessi:

1 accesso carraio

1 portone industriale (5 x 5 m)

Servizi: cinque servizi igienici, doccia, spogliatoio

Impianti e dotazioni:

Riscaldamento e condizionamento autonomi

Impianto di illuminazione ed elettrico completo

Impianto di allarme e videosorveglianza

Uscite e luci di emergenza

Porta tagliafuoco

Cablaggio dati

Organizzazione interna: reception, uffici distribuiti su due livelli

Area esterna: proprietà completamente recintata

Posti auto: 5 privati

Larghezza capannone: 21,2m

Lunghezza capannone: 20m

Ubicazione e contesto

L’immobile è situato a Guardamiglio, in posizione strategica lungo la Via Emilia, una delle principali direttrici della zona. L’area è caratterizzata da ottima accessibilità per mezzi pesanti e collegamenti rapidi con le principali arterie stradali e autostradali. Il contesto produttivo e commerciale circostante garantisce servizi, attività e infrastrutture adeguate alle esigenze logistiche e operative delle aziende. Una collocazione ideale per investitori che cercano solidità, praticità e un rendimento immediato.

Mostra tutto

Nelle vicinanze

Trasporto pubblico Trasporto pubblico
Trasporto pubblico
2,8 Km
Ricariche auto elettriche Ricariche auto elettriche
Innovenergy
270 m
Scuole Scuole
Scuole
760 m
Farmacia Farmacia
Farmacia Orsi
150 m
Negozi Negozi
A&O market
630 m
Bar Bar
Bar
1,2 Km
Ristoranti Ristoranti
taverna del gallo
680 m
Hostaria il Cavallo
2,7 Km
Mostra tutto

Caratteristiche

Rif.:
61147965
Totale piani:
2
Posti auto:
5
Condizionamento:
Autonomo
Ascensore:
No
Riscaldamento:
Autonomo
Mostra tutto
Prezzo Prezzo
€ 350.000
Rata mutuo Rata mutuo
€ 1.635 / mese
Spese annue Spese annue
€ 0
Proponi il tuo prezzoProponi il tuo prezzo

Altre caratteristiche

Descrizione dei locali
Bagno antibagno

Classe Energetica

D
D
D
D
D
D
D
D
D
EP globale non rinnovabile:
43.00 kW h/m² anno
EP globale rinnovabile:
43.00 kW h/m² anno
EP invernale del fabbricato:
EP estiva del fabbricato:
Anno di costruzione:
2009
Riscaldamento:
Autonomo
Tipo impianto:
Ad aria
Tipo alimentazione:
Aria

Ti interessa visionare l'immobile?

Fissa un appuntamento  Fissa un appuntamento

Richiedi informazioni

Clicca su Leggi per aprire l'informativa
* Questi campi sono obbligatori

Calcola il tuo mutuo

Semplice e senza impegno
Anticipo

( % )
Mutuo

( % )

pochi semplici passi

inserisci i tuoi dati
Questionario completato
Grazie per aver richiesto un appuntamento senza impegno con un nostro Consulente del Credito e Assicurativo.

Hai inserito correttamente tutti i dati necessari e a breve riceverai una e-mail con un link da convalidare per inviare i tuoi dati.
Affiliato
Industriale Crema Srl
Viale Alcide De Gasperi, 57/A 26013 Crema (CR)

Il nostro staff


  • Cristiano Cerioli
    Collaboratore

  • Tommaso Fiorentino
    Collaboratore

  • Nicola Gervasi
    Affiliato

  • Andrea Gatti
    Affiliato

  • Salwa El Fares
    Collaboratrice

  • Jacopo Piloni
    Collaboratore

  • Federica Scarpa
    Coordinatrice

  • Valentina Sozzi
    Coordinatrice

  • Claudio Valecci
    Affiliato

  • Francesca Lanzini
    Affiliata
Viale Alcide De Gasperi, 57/A 26013 Crema (CR)
Zona: Crema
Mostra su mappa
Affiliato
Industriale Crema Srl
Viale Alcide De Gasperi, 57/A 26013 Crema (CR)

2026 Tecnocasa Franchising S.p.A. - P. IVA 08365160152 - Via Monte Bianco 60/A 20089 Rozzano (MI). Ogni agenzia ha un proprio titolare ed è autonoma. Privacy policy | Policy utilizzo | Cookie policy