Negozio in affitto

Lodi, Corso Roma
€ 1.000 / mese
1 locale 1 locale
50 Mq 50 Mq
1 bagno 1 bagno

Negozio in affitto

Lodi, Corso Roma

Descrizione annuncio

PARTICOLARITA' E DESCRIZIONE

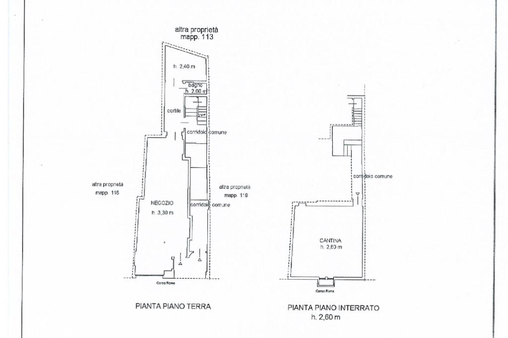
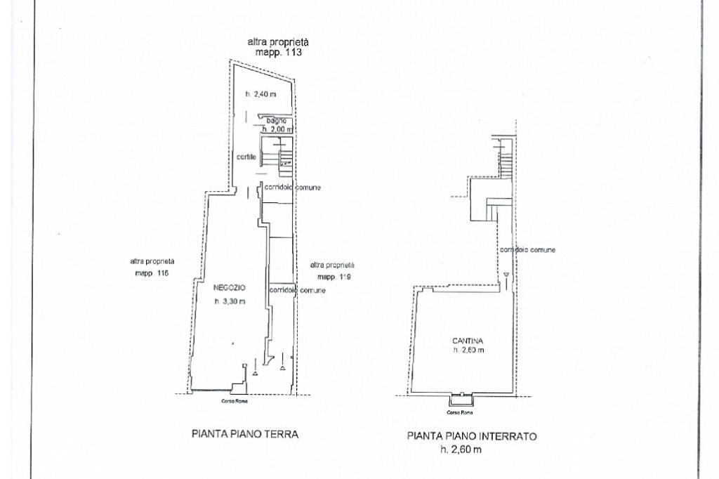
Il negozio che stiamo presentando rappresenta un'opportunità unica per coloro che desiderano avviare la propria attività commerciale in una posizione privilegiata. Situato di fronte alla strada principale, questo spazio vanta una superficie di 50 metri quadrati, offrendo ampio spazio per esprimere la propria creatività imprenditoriale.

Una delle caratteristiche distintive di questo locale è la sua flessibilità. Non arredato, è pronto per essere personalizzato secondo le esigenze del nuovo proprietario. L'altezza del soffitto, che raggiunge i 3 metri, offre ampio spazio verticale per varie possibilità di allestimento, consentendo di creare un ambiente accogliente e funzionale.

Grazie ai moderni impianti di riscaldamento autonomo e climatizzatore autonomo, i clienti potranno godere di un ambiente confortevole durante tutto l'anno, indipendentemente dalle condizioni climatiche esterne. Inoltre, la presenza di due vetrine garantisce una visibilità ottimale del negozio dalla strada, catturando l'attenzione dei passanti e attirando potenziali clienti.

È importante sottolineare che il negozio è disponibile immediatamente, quindi il nuovo proprietario può avviare la propria attività senza indugi.

Importante considerare l'assenza di spese condominiali.

Infine, il locale è dotato di un bagno, assicurando la comodità e l'igiene sia per i clienti che per il personale.

In sintesi, questo negozio rappresenta un'opportunità ideale per chiunque desideri avviare un'attività commerciale in una posizione strategica, con tutte le comodità necessarie per garantire il successo del proprio business.

UBICAZIONE E CONTESTO

La città di Lodi è un comune italiano di 45156 abitanti. Lodi è un nodo stradale di importanza regionale: la città è servita dalla SS 9 Via Emilia e da numerose Strade Proviciali, tra cui la ex SS 235 Pavia - Brescia e la ex SS 472 Treviglio - Lodi. Le strade convergenti sulla città sono raccordate dalle tangenziali Sub ed Est, che formano un semianello (interrotto nel settore nord-ovest) con caratteristiche di superstrada.
Mostra tutto

Nelle vicinanze

Trasporto pubblico Trasporto pubblico
stazione di Lodi
stazione di Lodi
650 m
XX Settembre 26 - Corso Roma
XX Settembre 26 - Corso Roma
70 m
XX Settembre 1
XX Settembre 1
230 m
Ricariche auto elettriche Ricariche auto elettriche
Negozio Enel di LODI | EnelX
900 m
COOP Lodi
1,8 Km
Scuole Scuole
Istituto magistrale Maffeo Vegio
70 m
Scuola media Ada Negri
160 m
Scuola paritaria Maddalena Canossa
160 m
Collegio Scaglioni
190 m
Scuole diocesane
260 m
Farmacia Farmacia
Gastaldi
60 m
Giberti
200 m
Belloni
270 m
Manfrini
300 m
Barbieri - Dottor Storti
350 m
Ospedali Ospedali
Ospedale Vecchio
360 m
Ospedale Maggiore
560 m
Supermercati Supermercati
A&O
330 m
Eurospin
580 m
CarrefourExpress
700 m
Sigma
710 m
Conad
780 m
Negozi Negozi
Negozi
30 m
United Colors of Benetton
90 m
Maffoni
110 m
Smartly
120 m
Dali
130 m
Bar Bar
Yoamo
230 m
Officine Adda
820 m
New Bar
870 m
ART café
1,1 Km
Cantiere N7
1,9 Km
Ristoranti Ristoranti
Pizzeria Armandino
140 m
La Petite Mondina
160 m
L'Escalier
270 m
Fiaschetteria
280 m
Due Agnelli
280 m
Mostra tutto

Caratteristiche

Rif.:
60882883
Piano:
Terra di 3
Totale piani:
3
Condizionamento:
Autonomo
Ascensore:
No
Riscaldamento:
Autonomo
Mostra tutto
Prezzo Prezzo
€ 1.000 / mese
Spese annue Spese annue
€ 0

Altre caratteristiche

Descrizione dei locali
Bagno antibagno

Classe Energetica

Questo immobile è esente da classe energetica
Anno di costruzione:
1980
Riscaldamento:
Autonomo
Tipo impianto:
Ad aria
Tipo alimentazione:
Aria

Ti interessa visionare l'immobile?

Fissa un appuntamento  Fissa un appuntamento

Richiedi informazioni

* Questi campi sono obbligatori
Affiliato
Industriale Crema Srl
Viale Alcide De Gasperi, 57/A 26013 Crema (CR)

Il nostro staff


  • Cristiano Cerioli
    Collaboratore

  • Luca Corno
    Collaboratore

  • Matteo Ferrari
    Collaboratore

  • Nicola Gervasi
    Affiliato

  • Andrea Gatti
    Affiliato

  • Toni Koshaj
    Collaboratore

  • Salwa El Fares
    Collaboratrice

  • Jacopo Piloni
    Collaboratore

  • Federica Scarpa
    Coordinatrice

  • Valentina Sozzi
    Coordinatrice

  • Claudio Valecci
    Affiliato

  • Francesca Lanzini
    Affiliata
Viale Alcide De Gasperi, 57/A 26013 Crema (CR)
Zona: Crema
Mostra su mappa
Affiliato
Industriale Crema Srl
Viale Alcide De Gasperi, 57/A 26013 Crema (CR)

2025 Tecnocasa Franchising S.p.A. - P. IVA 08365160152 - Via Monte Bianco 60/A 20089 Rozzano (MI). Ogni agenzia ha un proprio titolare ed è autonoma. Privacy policy | Policy utilizzo | Cookie policy