Ufficio in affitto

Lodi, Via Felice Cavallotti
€ 890 / mese
1 locale 1 locale
45 Mq 45 Mq
1 bagno 1 bagno

Ufficio in affitto

Lodi, Via Felice Cavallotti

Descrizione annuncio

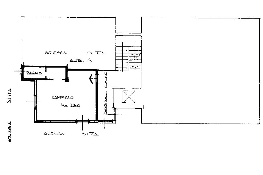
In una posizione strategica e facilmente accessibile, proponiamo in affitto ufficio al piano terra ideale per professionisti e piccole attività che cercano uno spazio funzionale, moderno e pronto all’uso. L’altezza interna di 3,5 metri e le dotazioni tecniche complete rappresentano un valore aggiunto per chi desidera un ambiente di lavoro confortevole e versatile.

Caratteristiche

Tipologia: Ufficio

Superficie: 45 mq

Locali: 1 ambiente open space

Servizi: 1 servizio igienico

Piano: Terra, in edificio di 3 piani

Anno di costruzione: Anni ’90

Stato di manutenzione: Buono

Altezza interna: 3,50 m

Riscaldamento: Autonomo a radiatori

Climatizzazione: Autonoma

Ventilazione meccanica

Accesso disabili

Porta blindata e porta tagliafuoco

Impianto elettrico e di illuminazione a norma

Connessione internet a banda larga, cablato

Posti auto: 2 posti auto esterni

Spese condominiali: €200/anno

Ubicazione e contesto

L’immobile è situato a Lodi, in via Felice Cavallotti, zona ben servita e facilmente raggiungibile, caratterizzata da un contesto ordinato e professionale. La posizione garantisce comodità di accesso, visibilità e la presenza di servizi nelle immediate vicinanze, rendendolo una soluzione ideale per studi professionali, uffici direzionali o attività di consulenza. Ottimi i collegamenti con le principali arterie cittadine e le aree di parcheggio.

Mostra tutto

Nelle vicinanze

Trasporto pubblico Trasporto pubblico
stazione di Lodi
stazione di Lodi
2,1 Km
Trasporto pubblico
110 m
San Giacomo (carabinieri)
San Giacomo (carabinieri)
950 m
Ricariche auto elettriche Ricariche auto elettriche
Negozio Enel di LODI | EnelX
2,2 Km
Scuole Scuole
Scuola media Paolo Gorini
770 m
Scuola primaria Barzaghi
960 m
Liceo classico Pietro Verri
1,0 Km
Scuole diocesane
1,3 Km
Scuola primaria Santa Francesca Cabrini
1,3 Km
Farmacia Farmacia
Comunale N. 2
300 m
Sabbia
1,1 Km
Manfrini
1,4 Km
Barbieri - Dottor Storti
1,4 Km
Giberti
1,4 Km
Ospedali Ospedali
Ospedale Maggiore
1,1 Km
Ospedale Vecchio
1,2 Km
Supermercati Supermercati
LD Market
350 m
Famila Superstore
480 m
Sigma
830 m
CarrefourExpress
840 m
Eurospin
1,4 Km
Negozi Negozi
Il Pane
420 m
Spazio 01
950 m
Peletti
1,0 Km
Negozi
1,0 Km
Naviraj Indian Store
1,0 Km
Bar Bar
Yoamo
1,5 Km
Cantiere N7
2,1 Km
ART café
2,2 Km
Officine Adda
2,3 Km
New Bar
2,3 Km
Ristoranti Ristoranti
Delfino
240 m
Green Corner
820 m
La Pagoda
920 m
Vasiniko
1,1 Km
Osteria del Mercato
1,2 Km
Mostra tutto

Caratteristiche

Rif.:
61164903
Piano:
Terra di 3
Totale piani:
3
Posti auto:
2
Condizionamento:
Autonomo
Ascensore:
No
Mostra tutto
Prezzo Prezzo
€ 890 / mese
Spese annue Spese annue
€ 600

Altre caratteristiche

Descrizione dei locali
Bagno antibagno

Classe Energetica

Questo immobile è esente da classe energetica
Anno di costruzione:
1990
Riscaldamento:
Autonomo
Tipo impianto:
A radiatori
Tipo alimentazione:
Aria

Ti interessa visionare l'immobile?

Fissa un appuntamento  Fissa un appuntamento

Richiedi informazioni

Clicca su Leggi per aprire l'informativa
* Questi campi sono obbligatori
Affiliato
Industriale Crema Srl
Viale Alcide De Gasperi, 57/A 26013 Crema (CR)

Il nostro staff


  • Cristiano Cerioli
    Collaboratore

  • Tommaso Fiorentino
    Collaboratore

  • Nicola Gervasi
    Affiliato

  • Andrea Gatti
    Affiliato

  • Salwa El Fares
    Collaboratrice

  • Jacopo Piloni
    Collaboratore

  • Federica Scarpa
    Coordinatrice

  • Valentina Sozzi
    Coordinatrice

  • Claudio Valecci
    Affiliato

  • Francesca Lanzini
    Affiliata
Viale Alcide De Gasperi, 57/A 26013 Crema (CR)
Zona: Crema
Mostra su mappa
Affiliato
Industriale Crema Srl
Viale Alcide De Gasperi, 57/A 26013 Crema (CR)

2026 Tecnocasa Franchising S.p.A. - P. IVA 08365160152 - Via Monte Bianco 60/A 20089 Rozzano (MI). Ogni agenzia ha un proprio titolare ed è autonoma. Privacy policy | Policy utilizzo | Cookie policy