Capannone in affitto

Pianengo, Via Milano
€ 1.500 / mese
1 locale 1 locale
570 Mq 570 Mq
1 bagno 1 bagno

Capannone in affitto

Pianengo, Via Milano

Descrizione annuncio

Presentazione dell’Immobile

A Pianengo, in Via Milano, è disponibile un ampio laboratorio industriale in affitto che si distingue per la sua posizione strategica e per la versatilità degli spazi offerti. Questa soluzione immobiliare è ideale per imprese industriali o artigianali che necessitano di ambienti funzionali, facilmente accessibili e dotati di servizi essenziali per la produttività quotidiana.

Descrizione e Caratteristiche Principali

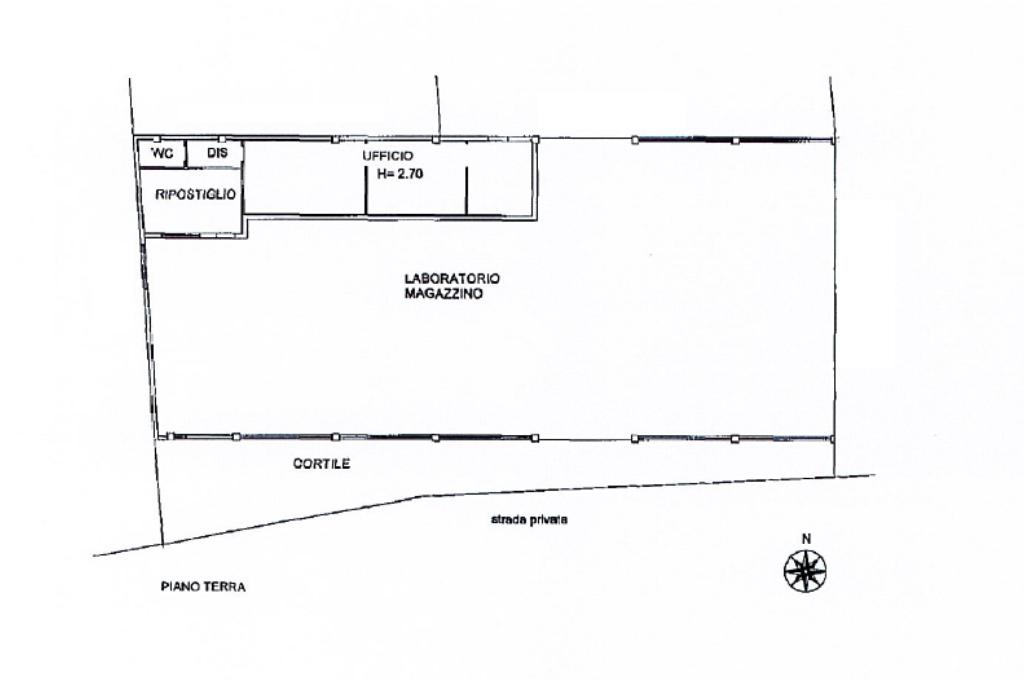
L’immobile si sviluppa su una superficie complessiva di 570 mq, suddivisa in modo ottimale per rispondere a diverse esigenze lavorative. Il laboratorio produttivo, situato al piano terra, occupa 500 mq, ai quali si aggiungono 70 mq destinati ad uffici anch’essi al piano terra. Gli ambienti risultano quindi ben organizzati per ospitare sia la produzione che le attività amministrative e di coordinamento.

Un valore aggiunto è rappresentato dall’area esterna di 360 mq, completamente recintata, che facilita le operazioni di movimentazione merci e offre circa 10 posti auto, risolvendo le necessità di parcheggio sia per dipendenti che per clienti o fornitori.

Dati Tecnici e Dotazioni

Superficie totale: 570 mq

Laboratorio produttivo (piano terra): 500 mq

Uffici (piano terra): 70 mq

Area esterna: 360 mq

Altezza: capannone 6,5 m; sottotrave 6 m

Accessi: 1 accesso carraio, portone con altezza di 4,18 m, uscita di emergenza

Dimensioni laboratorio: larghezza 21,78 m x lunghezza 25,70 m

Posti auto: circa 10

Impianti e dotazioni: riscaldamento autonomo, impianto elettrico 220 V, reception

Recinzione: immobile completamente recintato

Servizi: 1 servizio igienico

Stato dell’immobile: edificato negli anni ’90, in buone condizioni manutentive

Ubicazione e Contesto

La posizione dell’edificio garantisce grande facilità di accesso, grazie alla vicinanza alle principali vie di comunicazione e ai centri abitati limitrofi. L’area circostante è caratterizzata dalla presenza di servizi locali, infrastrutture commerciali e spazi pensati per attività industriali o logistiche. Questo contesto assicura praticità e sicurezza per tutte le operazioni quotidiane, rappresentando così una soluzione ideale per chi cerca un laboratorio efficiente e ben collegato.

Mostra tutto

Nelle vicinanze

Scuole Scuole
Elementare Elvino Benelli
2,1 Km
Farmacia Farmacia
Piazzalunga
2,1 Km
Farmacia San Pancrazio
2,3 Km
Antonietti
2,9 Km
Negozi Negozi
Le Briciole
2,1 Km
Sulla Pelle
2,2 Km
Bar Bar
Break Food
1,9 Km
Bar
1,9 Km
Centrale
2,2 Km
La Placa
2,2 Km
L'Incontro
2,8 Km
Ristoranti Ristoranti
Tiraboschi
2,1 Km
L'ignorante
3,0 Km
Mostra tutto

Caratteristiche

Rif.:
61105347
Piano:
Terra di 1
Totale piani:
1
Posti auto:
10
Condizionamento:
Assente
Ascensore:
No
Mostra tutto
Prezzo Prezzo
€ 1.500 / mese
Spese annue Spese annue
€ 0

Altre caratteristiche

Descrizione dei locali
Bagno antibagno

Classe Energetica

G
G
G
G
G
G
G
G
G
EP globale non rinnovabile:
436.99 kW h/m² anno
Anno di costruzione:
1990
Riscaldamento:
Autonomo
Tipo impianto:
Ad aria
Tipo alimentazione:
Aria

Ti interessa visionare l'immobile?

Fissa un appuntamento  Fissa un appuntamento

Richiedi informazioni

* Questi campi sono obbligatori
Affiliato
Industriale Crema Srl
Viale Alcide De Gasperi, 57/A 26013 Crema (CR)

Il nostro staff


  • Cristiano Cerioli
    Collaboratore

  • Luca Corno
    Collaboratore

  • Matteo Ferrari
    Collaboratore

  • Nicola Gervasi
    Affiliato

  • Andrea Gatti
    Affiliato

  • Toni Koshaj
    Collaboratore

  • Salwa El Fares
    Collaboratrice

  • Jacopo Piloni
    Collaboratore

  • Federica Scarpa
    Coordinatrice

  • Valentina Sozzi
    Coordinatrice

  • Claudio Valecci
    Affiliato

  • Francesca Lanzini
    Affiliata
Viale Alcide De Gasperi, 57/A 26013 Crema (CR)
Zona: Crema
Mostra su mappa
Affiliato
Industriale Crema Srl
Viale Alcide De Gasperi, 57/A 26013 Crema (CR)

2025 Tecnocasa Franchising S.p.A. - P. IVA 08365160152 - Via Monte Bianco 60/A 20089 Rozzano (MI). Ogni agenzia ha un proprio titolare ed è autonoma. Privacy policy | Policy utilizzo | Cookie policy