Laboratorio in vendita

Pianengo, Via dell'Artigianato
1500 Mq 1500 Mq
8 bagni 8 bagni

Laboratorio in vendita

Pianengo, Via dell'Artigianato

Descrizione annuncio

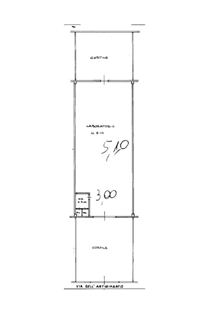
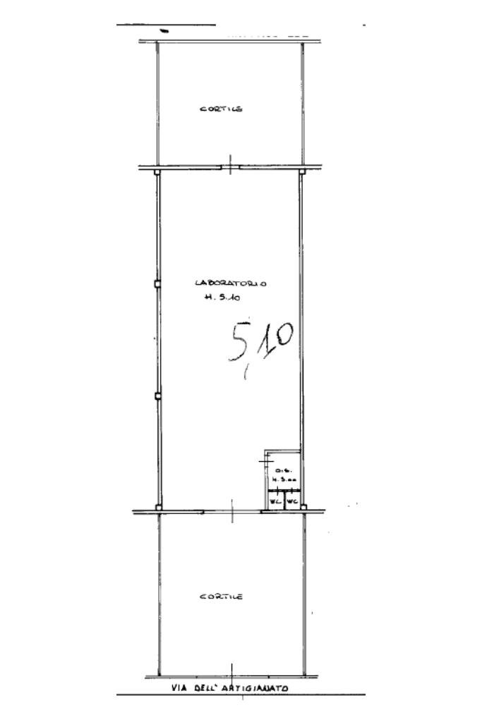
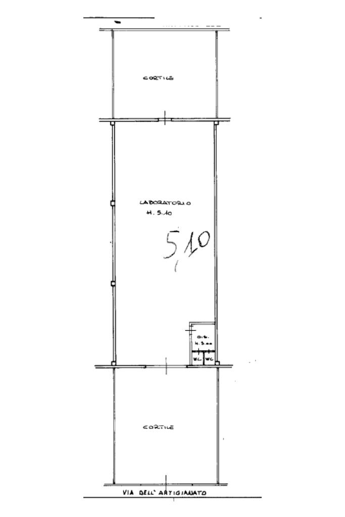
Proponiamo in vendita e locazione un ampio laboratorio artigianale di circa 1.500 mq, situato nel comune di Pianengo, in posizione strategica all’interno della zona produttiva. La soluzione si distingue per gli ampi spazi operativi, la versatilità degli accessi e l’ottimo stato manutentivo, con copertura recentemente ristrutturata nel 2024.

Caratteristiche

Superficie laboratorio: 1.500 mq

Superficie lotto complessiva: 2.880 mq

Area esterna: 1.380 mq

Anno di costruzione: 1996

Tetto ristrutturato: 2024

Altezza al colmo: 5,12 m

Altezza sottotrave: 5,12 m

Accessi carrai: 4

Portoni: 6 totali

3 portoni dimensioni 4,60 x 4,00 m3 portoni dimensioni 4,00 x 4,00 m

Servizi igienici: 8

Posti auto esterni: 10

Proprietà completamente recintata

Ubicazione e contesto

L’immobile è ubicato in via dell’Artigianato, nel comune di Pianengo, all’interno di un contesto produttivo ben organizzato e facilmente accessibile. La zona è caratterizzata dalla presenza di attività artigianali e industriali, risultando ideale per aziende che necessitano di spazi funzionali e ben collegati.

La posizione consente rapidi collegamenti con i principali centri limitrofi e con la rete viaria provinciale, garantendo facilità di movimentazione per mezzi pesanti e logistica efficiente.

Mostra tutto

Nelle vicinanze

Scuole Scuole
Elementare Elvino Benelli
2,5 Km
Farmacia Farmacia
Farmacia San Pancrazio
2,0 Km
Piazzalunga
2,5 Km
Negozi Negozi
Le Briciole
2,5 Km
Sulla Pelle
2,5 Km
Bar Bar
Break Food
2,3 Km
Bar
2,3 Km
Centrale
2,6 Km
La Placa
2,6 Km
Ristoranti Ristoranti
Tiraboschi
2,5 Km
Mostra tutto

Caratteristiche

Rif.:
61194420
Piano:
Terra di 1
Totale piani:
1
Posti auto:
10
Condizionamento:
Assente
Ascensore:
No
Mostra tutto
Prezzo Prezzo
€ 1.125.000
Rata mutuo Rata mutuo
€ 5.303 / mese
Spese annue Spese annue
€ 0
Anche in affitto a
Proponi il tuo prezzoProponi il tuo prezzo

Altre caratteristiche

Descrizione dei locali
Bagno antibagno

Classe Energetica

Questo immobile è esente da classe energetica
Anno di costruzione:
1990
Riscaldamento:
Assente

Ti interessa visionare l'immobile?

Fissa un appuntamento  Fissa un appuntamento

Richiedi informazioni

Clicca su Leggi per aprire l'informativa
* Questi campi sono obbligatori

Calcola il tuo mutuo

Semplice e senza impegno
Anticipo

( % )
Mutuo

( % )

pochi semplici passi

inserisci i tuoi dati
Questionario completato
Grazie per aver richiesto un appuntamento senza impegno con un nostro Consulente del Credito e Assicurativo.

Hai inserito correttamente tutti i dati necessari e a breve riceverai una e-mail con un link da convalidare per inviare i tuoi dati.
Affiliato
Industriale Crema Srl
Viale Alcide De Gasperi, 57/A 26013 Crema (CR)

Il nostro staff


  • Cristiano Cerioli
    Collaboratore

  • Tommaso Fiorentino
    Collaboratore

  • Nicola Gervasi
    Affiliato

  • Andrea Gatti
    Affiliato

  • Salwa El Fares
    Collaboratrice

  • Jacopo Piloni
    Collaboratore

  • Federica Scarpa
    Coordinatrice

  • Claudio Valecci
    Affiliato

  • Francesca Lanzini
    Affiliata
Viale Alcide De Gasperi, 57/A 26013 Crema (CR)
Zona: Crema
Mostra su mappa
Affiliato
Industriale Crema Srl
Viale Alcide De Gasperi, 57/A 26013 Crema (CR)

2026 Tecnocasa Franchising S.p.A. - P. IVA 08365160152 - Via Monte Bianco 60/A 20089 Rozzano (MI). Ogni agenzia ha un proprio titolare ed è autonoma. Privacy policy | Policy utilizzo | Cookie policy