Capannone in affitto

Pieve Fissiraga, Via Leonardo Da Vinci - Casale Sant'Antonio-Europa-Far
Informazioni in agenzia
3 locali 3 locali
2100 Mq 2100 Mq
4 bagni 4 bagni

Capannone in affitto

Pieve Fissiraga, Via Leonardo Da Vinci - Casale Sant'Antonio-Europa-Far

Descrizione annuncio

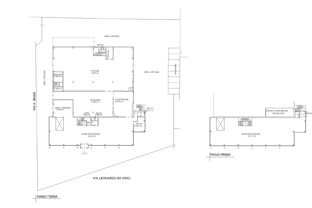
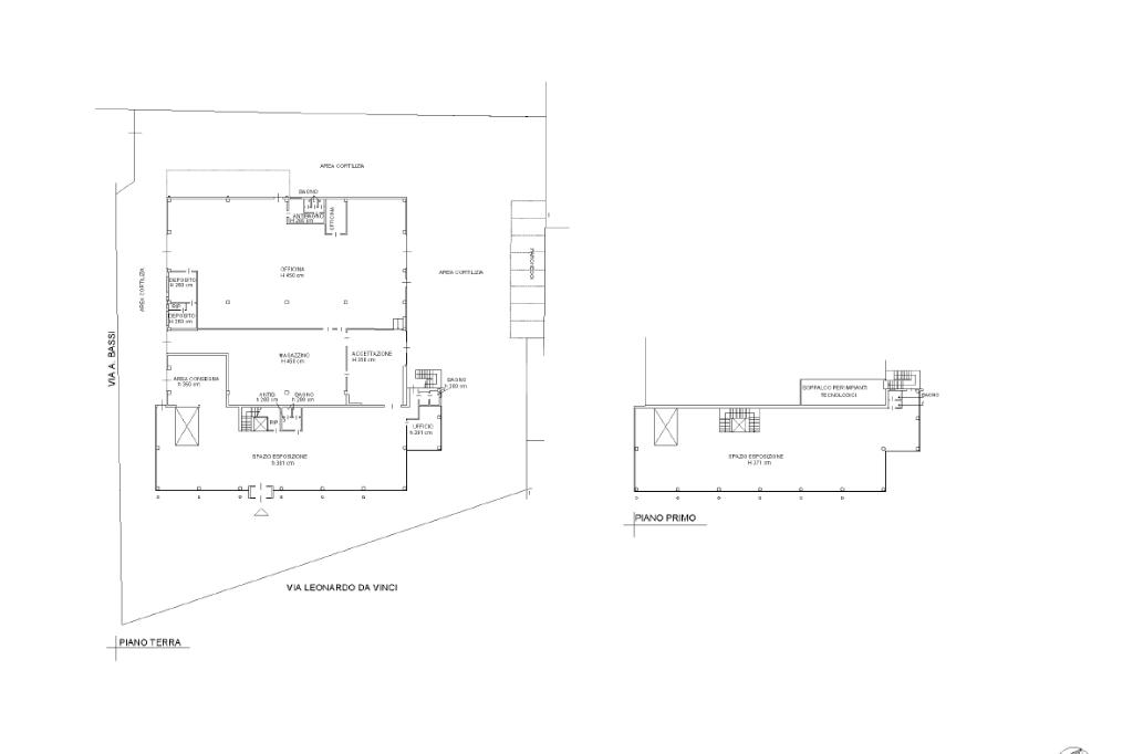
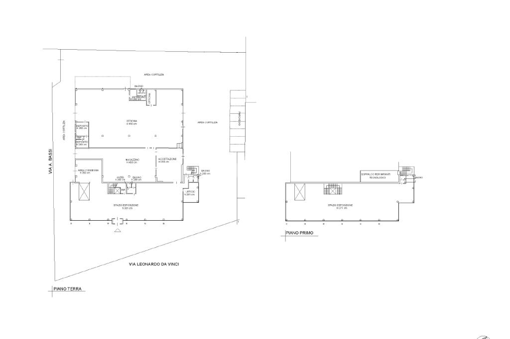
Proponiamo in locazione un capannone industriale di circa 2.100 mq situato nel comune di Pieve Fissiraga (LO).

L'immobile sorge su un lotto di circa 3.500 mq ed è stato realizzato nel 2007. Si sviluppa su due livelli così suddivisi:

1.000 mq ad uso commerciale, distribuiti tra piano terra e primo piano

1.100 mq al piano terra destinati ad uso produttivo.

Completa la proprietà un’ampia area esterna di circa 1.400 mq, ideale per manovra mezzi pesanti, parcheggio o carico/scarico.

Caratteristiche principali:

Altezza interna: 4,6 m

Immobile completo di tutti gli impianti

Videosorveglianza, impianto d’allarme e anello antincendio

Ampio ascensore/montacarichi automatico

Due accessi carrai

Illuminazione e uscite di emergenza

Numerosi posti auto esterni

Reception

Immobile completamente cablato

Riscaldamento e climatizzazione autonomi

Accesso disabili

Quattro servizi igienici, di cui uno a norma per disabili

Spogliatoi

Proprietà parzialmente recintata

Contesto e ubicazione

Pieve Fissiraga è un comune strategicamente posizionato nella provincia di Lodi, a breve distanza dal casello autostradale della A1 Milano–Bologna, che garantisce un eccellente collegamento con le principali direttrici logistiche del Nord Italia. L’area è caratterizzata da un tessuto produttivo in crescita, ben servita da infrastrutture e servizi, rendendola ideale per attività industriali, logistiche o commerciali che necessitano di facile accesso ai mercati lombardi ed emiliani. La vicinanza con Lodi e la relativa prossimità a Milano rappresentano ulteriori vantaggi in termini di visibilità e opportunità di business.

Mostra tutto

Nelle vicinanze

Trasporto pubblico Trasporto pubblico
Trasporto pubblico
230 m
Ricariche auto elettriche Ricariche auto elettriche
Crema Diesel S.p.A | EnelX
50 m
Decathlon Pieve Fissiraga
210 m
EnelX EVA+ ADS IP Cornegliano Laudense
1,6 Km
Scuole Scuole
Scuola elementare Giovanni XXIII
2,1 Km
Supermercati Supermercati
Bennet
390 m
Negozi Negozi
Conbipel
550 m
Negozi
3,0 Km
Ristoranti Ristoranti
Pizzeria King
2,0 Km
Mostra tutto

Caratteristiche

Rif.:
61128664
Piano:
2 di 2 con ascensore (Piano su più livelli)
Posti auto:
99
Condizionamento:
Autonomo
Ascensore:
Riscaldamento:
Autonomo
Mostra tutto
Prezzo Prezzo
Informazioni in agenzia
Spese annue Spese annue
€ 0

Altre caratteristiche

Descrizione dei locali
Bagno antibagno

Classe Energetica

Questo immobile è esente da classe energetica
Anno di costruzione:
2007
Riscaldamento:
Autonomo
Tipo impianto:
Ad aria
Tipo alimentazione:
Aria

Ti interessa visionare l'immobile?

Fissa un appuntamento  Fissa un appuntamento

Richiedi informazioni

* Questi campi sono obbligatori
Affiliato
Industriale Crema Srl
Viale Alcide De Gasperi, 57/A 26013 Crema (CR)

Il nostro staff


  • Cristiano Cerioli
    Collaboratore

  • Luca Corno
    Collaboratore

  • Matteo Ferrari
    Collaboratore

  • Nicola Gervasi
    Affiliato

  • Andrea Gatti
    Affiliato

  • Toni Koshaj
    Collaboratore

  • Salwa El Fares
    Collaboratrice

  • Jacopo Piloni
    Collaboratore

  • Federica Scarpa
    Coordinatrice

  • Valentina Sozzi
    Coordinatrice

  • Claudio Valecci
    Affiliato

  • Francesca Lanzini
    Affiliata
Viale Alcide De Gasperi, 57/A 26013 Crema (CR)
Zona: Crema
Mostra su mappa
Affiliato
Industriale Crema Srl
Viale Alcide De Gasperi, 57/A 26013 Crema (CR)

2025 Tecnocasa Franchising S.p.A. - P. IVA 08365160152 - Via Monte Bianco 60/A 20089 Rozzano (MI). Ogni agenzia ha un proprio titolare ed è autonoma. Privacy policy | Policy utilizzo | Cookie policy