Capannone in vendita

San Martino In Strada, Via dell'Artigianato
€ 975.000
Prezzo aggiornato
1 locale 1 locale
1600 Mq 1600 Mq
2 bagni 2 bagni

Capannone in vendita

San Martino In Strada, Via dell'Artigianato

Descrizione annuncio

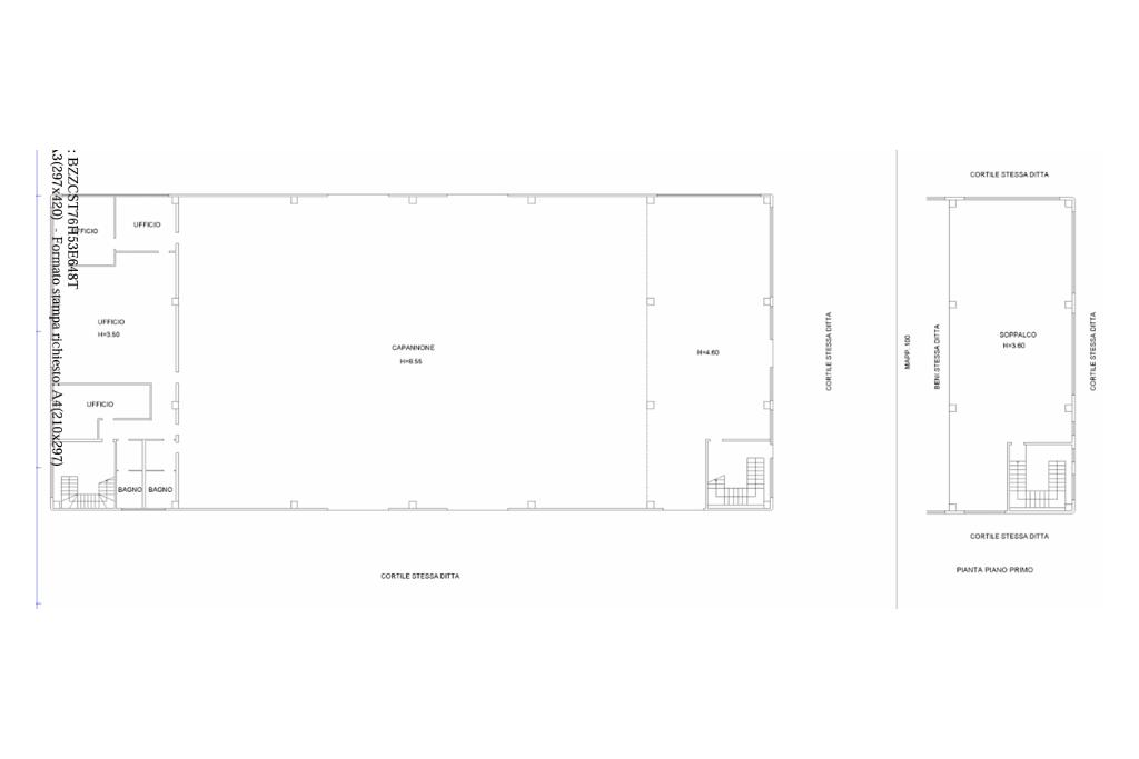
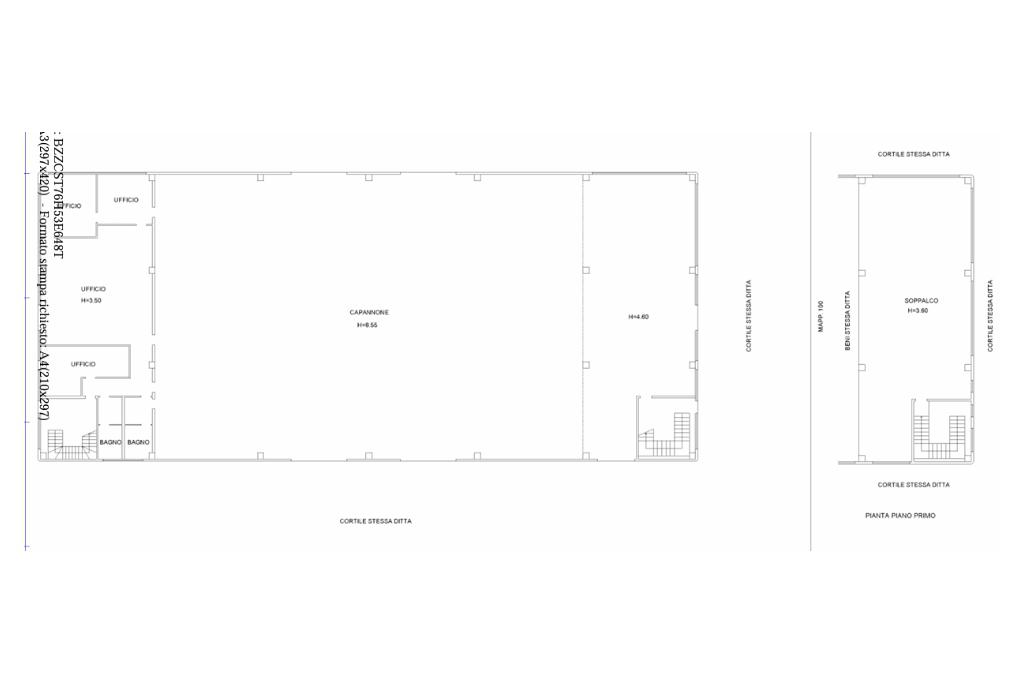
Proponiamo in vendita capannone commerciale sito nel comune di San Martino in Strada, più precisamente in Via Dell’Artigianato.

Il capannone si trova su un lotto di 3.000 mq e ha una superficie coperta di 1.200 mq. Al suo interno è presente una zona uffici di 160 mq. Al primo piano, completa la proprietà un’abitazione di 200 mq.

CARATTERISTICHE PRINCIPALI

- Altezza 9,5 m

- Altezza sotto trave 8,5 m

- 1 locale cablato

- 2 accessi carrai

- 4 portoni di altezza 4,5 m e larghezza 4,5 m

- 2 servizi igienici con doccia e spogliatoio annessi

- Completo di luci ed uscita di emergenza

- Completo di impianti: illuminazione, elettrico, allarme e videosorveglianza

- Completo di impianto di riscaldamento ed aria condizionata (solo nella zona uffici)

Il tetto del capannone è stato completamente rifatto nel 2022. L'immobile consente l’accesso di bilici, rendendolo ideale per attività che richiedono movimentazione di merci su larga scala.

L’immobile si presta a diverse destinazioni d’uso di tipo commerciale-produttivo tra cui: logistica e trasporti, commercio all’ingrosso, deposito e stoccaggio merci, showroom con magazzino, laboratori artigianali con area vendita, officine o centri di assistenza mezzi industriali oppure attività di produzione leggera.

L’ampia superficie, l’abitazione annessa e la zona uffici lo rendono un immobile estremamente versatile e funzionale.

NB. Il capannone non è libero immediatamente: sarà necessario concedere il tempo per lo sgombero e per consentire all’attuale inquilino di lasciare l’immobile. I tempi di liberazione verranno concordati in fase di trattativa.

UBICAZIONE E CONTESTO

San Martino in Strada è un comune italiano di 3 776 abitanti della provincia di Lodi in Lombardia. San Martino in Strada è posto all'incrocio di alcune strade provinciali, dirette verso Ossago, Lodi; Massalengo. Verso nord-est, il territorio comunale è lambito dalla strada statale 9 Via Emilia.

Mostra tutto

Nelle vicinanze

Trasporto pubblico Trasporto pubblico
S. Martino in Strada, Cà dei Bolli
S. Martino in Strada, Cà dei Bolli
1,1 Km
S. Martino in Strada, Cà del Conte
S. Martino in Strada, Cà del Conte
1,3 Km
Scuole Scuole
Scuola Primaria "Vittorio Pagano"
1,1 Km
Scuola Secondaria "Don Lorenzo Milani"
1,1 Km
Scuola dell'infanzia "Alfredino Rampi"
1,2 Km
Scuole
1,7 Km
IPS L. Einaudi
2,7 Km
Farmacia Farmacia
Santagostino
1,4 Km
Supermercati Supermercati
Supermercati
230 m
Carrefour Express
2,8 Km
D più
2,8 Km
Negozi Negozi
Negozi
270 m
Ristoranti Ristoranti
Sole rosso
440 m
Ristorante - osteria "Per Bacco"
2,5 Km
Megu
3,0 Km
Mostra tutto

Caratteristiche

Rif.:
61093993
Piano:
Terra di 2
Totale piani:
2
Condizionamento:
Assente
Ascensore:
No
Riscaldamento:
Autonomo
Mostra tutto
Prezzo Prezzo
€ 975.000
Rata mutuo Rata mutuo
€ 4.555 / mese
Spese annue Spese annue
€ 0
Proponi il tuo prezzoProponi il tuo prezzo

Altre caratteristiche

Descrizione dei locali
Bagno Con Finestra

Classe Energetica

D
D
D
D
D
D
D
D
D
EP globale non rinnovabile:
397.93 kW h/m² anno
EP globale rinnovabile:
32.48 kW h/m² anno
EP invernale del fabbricato:
EP estiva del fabbricato:
Anno di costruzione:
2003
Riscaldamento:
Autonomo
Tipo impianto:
Ad aria
Tipo alimentazione:
Aria

Prezzo ridotto di €1 (3%%)

Ti interessa visionare l'immobile?

Fissa un appuntamento  Fissa un appuntamento

Richiedi informazioni

Clicca su Leggi per aprire l'informativa
* Questi campi sono obbligatori

Calcola il tuo mutuo

Semplice e senza impegno
Anticipo

( % )
Mutuo

( % )

pochi semplici passi

inserisci i tuoi dati
Questionario completato
Grazie per aver richiesto un appuntamento senza impegno con un nostro Consulente del Credito e Assicurativo.

Hai inserito correttamente tutti i dati necessari e a breve riceverai una e-mail con un link da convalidare per inviare i tuoi dati.
Affiliato
Industriale Crema Srl
Viale Alcide De Gasperi, 57/A 26013 Crema (CR)

Il nostro staff


  • Cristiano Cerioli
    Collaboratore

  • Tommaso Fiorentino
    Collaboratore

  • Nicola Gervasi
    Affiliato

  • Andrea Gatti
    Affiliato

  • Salwa El Fares
    Collaboratrice

  • Jacopo Piloni
    Collaboratore

  • Federica Scarpa
    Coordinatrice

  • Valentina Sozzi
    Coordinatrice

  • Claudio Valecci
    Affiliato

  • Francesca Lanzini
    Affiliata
Viale Alcide De Gasperi, 57/A 26013 Crema (CR)
Zona: Crema
Mostra su mappa
Affiliato
Industriale Crema Srl
Viale Alcide De Gasperi, 57/A 26013 Crema (CR)

2026 Tecnocasa Franchising S.p.A. - P. IVA 08365160152 - Via Monte Bianco 60/A 20089 Rozzano (MI). Ogni agenzia ha un proprio titolare ed è autonoma. Privacy policy | Policy utilizzo | Cookie policy