Capannone in affitto

Sant'Angelo Lodigiano, Via Delle Foibe
2 locali 2 locali
600 Mq 600 Mq
1 bagno 1 bagno

Capannone in affitto

Sant'Angelo Lodigiano, Via Delle Foibe

Descrizione annuncio

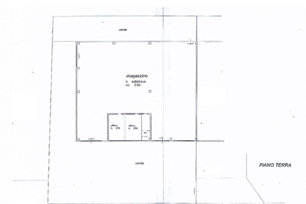
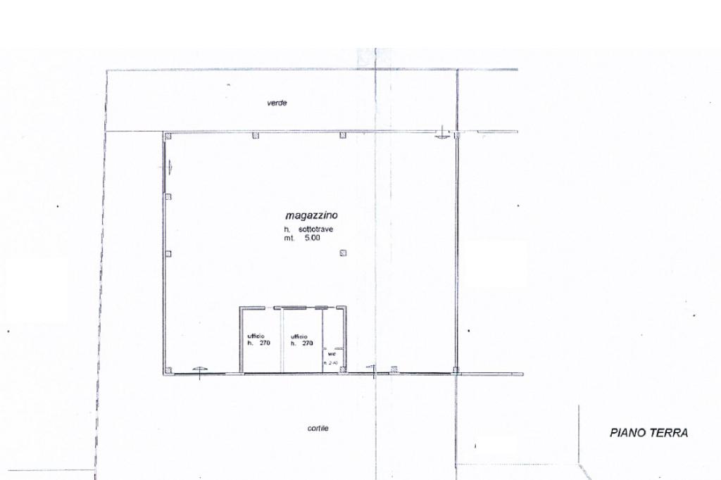
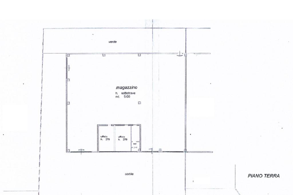
In locazione capannone industriale categoria D/7, edificato nel 2000, con spazi funzionali e una vasta area esterna che rappresenta un’importante opportunità per sviluppi futuri. L’immobile, ben strutturato e completamente recintato, si distingue per la praticità degli ambienti e la presenza di un’area edificabile di oltre 5.000 mq.

Caratteristiche principali

Superficie coperta piano terra: 600 mq

di cui 20 mq ad uso uffici

tettoia retrostante di 90 mq

Superficie totale lotto: 6.500 mq

Area esterna: 900 mq + area edificabile di 5.000 mq illuminata da pubblica illuminazione

Anno di costruzione: 2000

Altezze interne: 6,50 m al colmo – 5 m sotto trave

Dimensioni capannone: larghezza 21 m – lunghezza 27 m

Accessi: 1 carraio e 3 portoni (5 x 5 m)

Servizi interni: 1 servizio igienico, doccia, spogliatoio, reception

Impianti e dotazioni:

Riscaldamento e condizionamento autonomi (area uffici)

Impianto elettrico e di illuminazione

Impianto di allarme

Uscita di emergenza e luci di emergenza

Rete dati cablata

Proprietà completamente recintata

Ulteriori caratteristiche: uffici parzialmente arredati, posti auto esterni disponibili

Ubicazione e contesto

L’immobile si trova in Via Martiri delle Foibe a Sant’Angelo Lodigiano (LO), in una zona produttiva ben collegata e servita. La posizione strategica, a breve distanza dai principali collegamenti stradali e autostradali, consente spostamenti agevoli sia verso il Lodigiano sia verso i centri limitrofi e Milano. Il contesto circostante, caratterizzato da attività industriali e artigianali consolidate, rende questo capannone la soluzione ideale per aziende che cercano funzionalità immediata e possibilità di ampliamento futuro.

Mostra tutto

Nelle vicinanze

Ricariche auto elettriche Ricariche auto elettriche
BeCharge Municipio di Castiraga Vidardo
2,2 Km
Scuole Scuole
Scuola primaria "Riccardo Morzenti"
240 m
Asilo nido comunale
300 m
Scuola Secondaria di primo grado Santa Francesca Cabrini
810 m
Scuola Secondaria di Via Bracchi
830 m
Scuola primaria Carlo Collodi
840 m
Farmacia Farmacia
Farmacia
2,2 Km
Ospedali Ospedali
Ospedale Delmati
970 m
Supermercati Supermercati
Supermercati
350 m
Famila Superstore
660 m
MD Market
1,5 Km
Negozi Negozi
Panificio Grazioli
370 m
Centro Moda Cantoni
600 m
Amici Biancheria
610 m
Il Fornaio
2,2 Km
Bar Bar
Jolly Bar
2,4 Km
Ristoranti Ristoranti
Casa della Pizza
580 m
Mostra tutto

Caratteristiche

Rif.:
61110319
Piano:
Terra di 1
Totale piani:
1
Posti auto:
20
Condizionamento:
Autonomo
Ascensore:
No
Mostra tutto
Prezzo Prezzo
€ 3.000 / mese
Spese annue Spese annue
€ 0
Anche in vendita a

Altre caratteristiche

Descrizione dei locali
Bagno antibagno

Classe Energetica

Questo immobile è esente da classe energetica
Anno di costruzione:
2000
Riscaldamento:
Autonomo
Tipo impianto:
Ad aria
Tipo alimentazione:
Aria

Ti interessa visionare l'immobile?

Fissa un appuntamento  Fissa un appuntamento

Richiedi informazioni

* Questi campi sono obbligatori
Affiliato
Industriale Crema Srl
Viale Alcide De Gasperi, 57/A 26013 Crema (CR)

Il nostro staff


  • Cristiano Cerioli
    Collaboratore

  • Luca Corno
    Collaboratore

  • Matteo Ferrari
    Collaboratore

  • Nicola Gervasi
    Affiliato

  • Andrea Gatti
    Affiliato

  • Toni Koshaj
    Collaboratore

  • Salwa El Fares
    Collaboratrice

  • Jacopo Piloni
    Collaboratore

  • Federica Scarpa
    Coordinatrice

  • Valentina Sozzi
    Coordinatrice

  • Claudio Valecci
    Affiliato

  • Francesca Lanzini
    Affiliata
Viale Alcide De Gasperi, 57/A 26013 Crema (CR)
Zona: Crema
Mostra su mappa
Affiliato
Industriale Crema Srl
Viale Alcide De Gasperi, 57/A 26013 Crema (CR)

2025 Tecnocasa Franchising S.p.A. - P. IVA 08365160152 - Via Monte Bianco 60/A 20089 Rozzano (MI). Ogni agenzia ha un proprio titolare ed è autonoma. Privacy policy | Policy utilizzo | Cookie policy