Capannone in affitto

Sant'Angelo Lodigiano, Via Maestri del Lavoro
€ 3.800 / mese
Prezzo aggiornato
5 locali 5 locali
1190 Mq 1190 Mq
2 bagni 2 bagni

Capannone in affitto

Sant'Angelo Lodigiano, Via Maestri del Lavoro

Descrizione annuncio

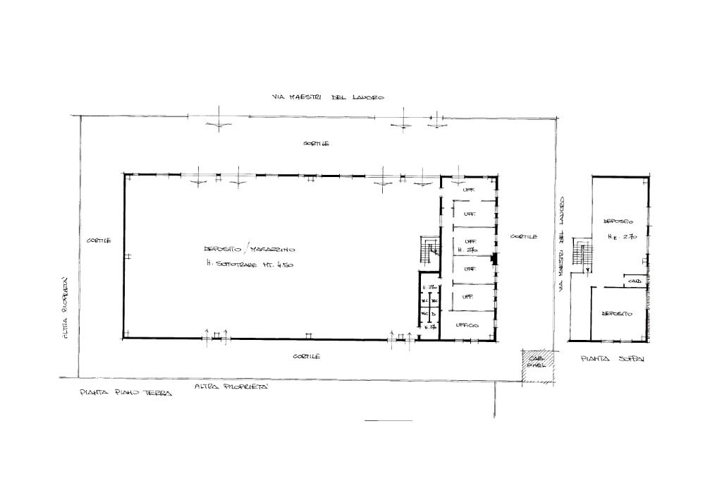
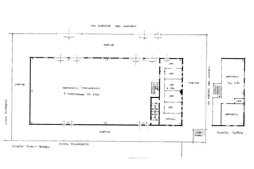
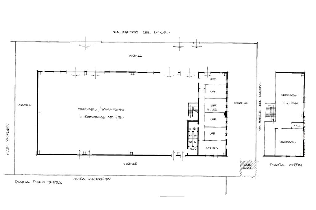
A Sant’Angelo Lodigiano, Via Maestri del Lavoro, proponiamo opificio D/1 di ampia metratura, ideale per attività produttive che necessitano di spazi versatili, ambienti privi di pilastri e dotazioni complete. Una soluzione pronta all’uso, progettata per garantire efficienza operativa e massimo comfort.

Caratteristiche dell’immobile

Superficie totale: 1.190 m²

870 m² al piano terra ad uso produttivo

150 m² al piano terra ad uso uffici

170 m² al piano primo ad uso uffici

Lotto complessivo: 2.000 m²

Area esterna: circa 980 m²

Anno di costruzione: 2006

Altezze interne:

Altezza al colmo: 6,50 m

Altezza sottotrave: 4,45 m

Struttura: capannone privo di pilastri

Accessi:

Due accessi carrai

Quattro portoni 4,5 m x 4,5 m

Dotazioni e impianti:

Riscaldamento e condizionamento autonomi

Impianto elettrico e di illuminazione

Videosorveglianza

Anello antincendio presente ma da ripristinare

Porta tagliafuoco e uscita di emergenza

Reception

Servizi interni: due bagni, doccia, spogliatoio e mensa

Area esterna attrezzata: proprietà recintata, circa 15 posti auto

Disponibilità: immediata

Contratto: soluzione disponibile in affitto

Ubicazione e contesto

L’immobile è situato in un contesto produttivo ben servito, strategico per aziende che richiedono facilità di accesso e ottimi collegamenti viari. La zona, caratterizzata da insediamenti industriali e artigianali, garantisce tranquillità operativa senza rinunciare alla vicinanza ai principali servizi. La presenza di arterie stradali e raccordi nelle immediate vicinanze consente spostamenti rapidi e logistica agevole, rendendo questa soluzione particolarmente adatta a realtà produttive, logistiche o commerciali che cercano uno spazio moderno, efficiente e subito operativo.

Mostra tutto

Nelle vicinanze

Trasporto pubblico Trasporto pubblico
Trasporto pubblico
2,5 Km
Ricariche auto elettriche Ricariche auto elettriche
BeCharge Municipio di Castiraga Vidardo
1,7 Km
Scuole Scuole
Asilo nido comunale
1,3 Km
Scuola primaria "Riccardo Morzenti"
1,4 Km
Scuola Secondaria di primo grado Santa Francesca Cabrini
1,4 Km
Scuola primaria Carlo Collodi
1,5 Km
Scuola elementare Santa Francesca Cabrini
1,5 Km
Farmacia Farmacia
Farmacia
1,5 Km
Ospedali Ospedali
Ospedale Delmati
2,1 Km
Supermercati Supermercati
Famila Superstore
960 m
Supermercati
1,4 Km
MD Market
2,7 Km
Negozi Negozi
Centro Moda Cantoni
960 m
Panificio Grazioli
1,2 Km
Amici Biancheria
1,2 Km
Il Fornaio
1,4 Km
Manenti Elvira
2,6 Km
Bar Bar
Jolly Bar
1,7 Km
Ristoranti Ristoranti
Casa della Pizza
1,2 Km
Mostra tutto

Caratteristiche

Rif.:
61144728
Piano:
Su più livelli di 2
Totale piani:
2
Posti auto:
15
Condizionamento:
Autonomo
Ascensore:
No
Mostra tutto
Prezzo Prezzo
€ 3.800 / mese
Spese annue Spese annue
€ 0

Altre caratteristiche

Descrizione dei locali
Bagno antibagno

Classe Energetica

D
D
D
D
D
D
D
D
D
EP globale non rinnovabile:
307.30 kW h/m² anno
EP globale rinnovabile:
38.50 kW h/m² anno
EP invernale del fabbricato:
EP estiva del fabbricato:
Anno di costruzione:
2005
Riscaldamento:
Autonomo
Tipo impianto:
Ad aria
Tipo alimentazione:
Aria

Prezzo ridotto di €1 (3%%)

Ti interessa visionare l'immobile?

Fissa un appuntamento  Fissa un appuntamento

Richiedi informazioni

Clicca su Leggi per aprire l'informativa
* Questi campi sono obbligatori
Affiliato
Industriale Crema Srl
Viale Alcide De Gasperi, 57/A 26013 Crema (CR)

Il nostro staff


  • Cristiano Cerioli
    Collaboratore

  • Nicola Gervasi
    Affiliato

  • Andrea Gatti
    Affiliato

  • Salwa El Fares
    Collaboratrice

  • Jacopo Piloni
    Collaboratore

  • Federica Scarpa
    Coordinatrice

  • Valentina Sozzi
    Coordinatrice

  • Claudio Valecci
    Affiliato

  • Francesca Lanzini
    Affiliata
Viale Alcide De Gasperi, 57/A 26013 Crema (CR)
Zona: Crema
Mostra su mappa
Affiliato
Industriale Crema Srl
Viale Alcide De Gasperi, 57/A 26013 Crema (CR)

2025 Tecnocasa Franchising S.p.A. - P. IVA 08365160152 - Via Monte Bianco 60/A 20089 Rozzano (MI). Ogni agenzia ha un proprio titolare ed è autonoma. Privacy policy | Policy utilizzo | Cookie policy