Capannone in vendita

Sant'Angelo Lodigiano, Via Achille Grandi
€ 370.000
1 locale 1 locale
820 Mq 820 Mq
2 bagni 2 bagni

Capannone in vendita

Sant'Angelo Lodigiano, Via Achille Grandi

Descrizione annuncio

Capannone industriale in vendita – Sant’Angelo Lodigiano (LO)
Proponiamo in vendita capannone industriale (categoria catastale D/7) situato in Via Grandi, nel comune di Sant’Angelo Lodigiano. L’immobile, di ampia metratura e dotato di impianti completi, rappresenta una soluzione ideale per attività produttive, logistiche o di deposito.

Caratteristiche principali:

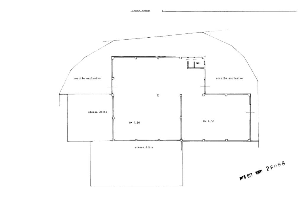
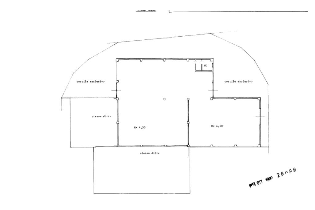
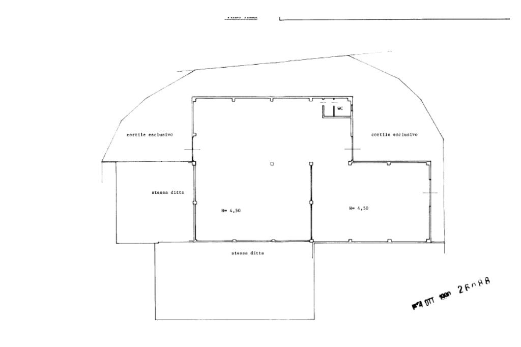
Superficie coperta: circa 820 mq

Area Esterna: 310mq circa

Altezza interna: 6,00 m al colmo – 4,50 m sotto trave

Dimensioni interne: larghezza 22,40 m – lunghezza 36,60 m

Accessi carrai: tre ingressi carrabili per agevolare la movimentazione di mezzi e merci

Servizi interni: due servizi igienici, spogliatoio e doccia

Impiantistica presente:

Riscaldamento autonomo

Condizionamento autonomo

Impianto di illuminazione

Impianto elettrico

Impianto di allarme

Uscita di emergenza

Ubicazione e contesto:

L’immobile è situato in una zona produttiva ben sviluppata di Sant’Angelo Lodigiano, con ottima accessibilità per veicoli industriali e collegamenti rapidi alle principali arterie stradali della zona. Il contesto circostante è caratterizzato dalla presenza di altre attività industriali e artigianali, rendendo la posizione strategica per chi cerca funzionalità, spazio e visibilità.

Disponibilità immediata

Mostra tutto

Nelle vicinanze

Ricariche auto elettriche Ricariche auto elettriche
BeCharge Municipio di Castiraga Vidardo
2,5 Km
BeCharge Marudo Via Roma
2,6 Km
Scuole Scuole
Scuola primaria Carlo Collodi
1,2 Km
Scuola Secondaria di primo grado Santa Francesca Cabrini
1,2 Km
Scuola Secondaria di Via Bracchi
1,2 Km
Istituto di Istruzione Superiore "Raimondo Pandini"
1,3 Km
Asilo nido comunale
1,3 Km
Farmacia Farmacia
Farmacia
2,7 Km
Ospedali Ospedali
Ospedale Delmati
1,8 Km
Supermercati Supermercati
MD Market
130 m
Supermercati
1,6 Km
Famila Superstore
1,7 Km
Negozi Negozi
Panificio Grazioli
1,4 Km
Amici Biancheria
2,0 Km
Centro Moda Cantoni
2,0 Km
Il Fornaio
2,8 Km
Bar Bar
Jolly Bar
2,9 Km
bar Betti Cinzia
2,9 Km
Ristoranti Ristoranti
Casa della Pizza
1,9 Km
Mostra tutto

Caratteristiche

Rif.:
61084446
Piano:
Terra di 1
Totale piani:
1
Condizionamento:
Autonomo
Ascensore:
No
Riscaldamento:
Autonomo
Mostra tutto
Prezzo Prezzo
€ 370.000
Rata mutuo Rata mutuo
€ 1.705 / mese
Spese annue Spese annue
€ 0
Proponi il tuo prezzoProponi il tuo prezzo

Altre caratteristiche

Descrizione dei locali
Bagno antibagno

Classe Energetica

Questo immobile è esente da classe energetica
Anno di costruzione:
1980
Riscaldamento:
Autonomo
Tipo impianto:
Ad aria
Tipo alimentazione:
Aria

Ti interessa visionare l'immobile?

Fissa un appuntamento  Fissa un appuntamento

Richiedi informazioni

* Questi campi sono obbligatori

Calcola il tuo mutuo

Semplice e senza impegno
Anticipo

( % )
Mutuo

( % )

pochi semplici passi

inserisci i tuoi dati
Questionario completato
Grazie per aver richiesto un appuntamento senza impegno con un nostro Consulente del Credito e Assicurativo.

Hai inserito correttamente tutti i dati necessari e a breve riceverai una e-mail con un link da convalidare per inviare i tuoi dati.
Affiliato
Industriale Crema Srl
Viale Alcide De Gasperi, 57/A 26013 Crema (CR)

Il nostro staff


  • Cristiano Cerioli
    Collaboratore

  • Luca Corno
    Collaboratore

  • Matteo Ferrari
    Collaboratore

  • Nicola Gervasi
    Affiliato

  • Andrea Gatti
    Affiliato

  • Toni Koshaj
    Collaboratore

  • Salwa El Fares
    Collaboratrice

  • Jacopo Piloni
    Collaboratore

  • Federica Scarpa
    Coordinatrice

  • Valentina Sozzi
    Coordinatrice

  • Claudio Valecci
    Affiliato

  • Francesca Lanzini
    Affiliata
Viale Alcide De Gasperi, 57/A 26013 Crema (CR)
Zona: Crema
Mostra su mappa
Affiliato
Industriale Crema Srl
Viale Alcide De Gasperi, 57/A 26013 Crema (CR)

2025 Tecnocasa Franchising S.p.A. - P. IVA 08365160152 - Via Monte Bianco 60/A 20089 Rozzano (MI). Ogni agenzia ha un proprio titolare ed è autonoma. Privacy policy | Policy utilizzo | Cookie policy