Capannone in vendita

Somaglia, Via delle Industrie
2 locali 2 locali
3000 Mq 3000 Mq
3 bagni 3 bagni

Capannone in vendita

Somaglia, Via delle Industrie

Descrizione annuncio

PARTICOLARITA’ E DESCRIZIONE

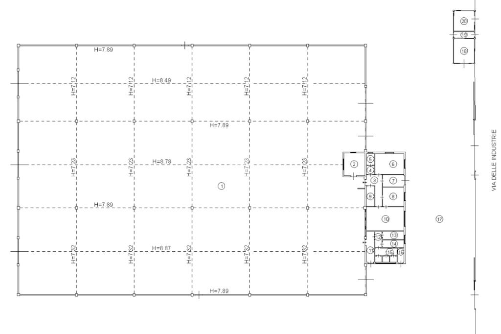
Proponiamo in vendita capannone industriale ubicato a Somaglia, in Via delle Industrie. L’immobile si sviluppa su un lotto complessivo di 5.800 mq, di cui circa 3.000 mq sono coperti da capannone, mentre 130 mq sono destinati a uffici. La restante parte dell’area, pari a circa 2.800 mq, è scoperta e ad uso esclusivo, ideale per operazioni di carico e scarico, stoccaggio esterno o parcheggio mezzi. Il capannone è composto da tre campate e dispone di due accessi carrai, che garantiscono una buona accessibilità anche a veicoli pesanti. L’intera proprietà è recintata e l’accesso avviene tramite un ingresso carraio. Il tetto è in lamiera ed è già stato oggetto di bonifica. L’immobile è attualmente privo di impianti di riscaldamento e condizionamento, caratteristica che consente un’eventuale personalizzazione secondo le esigenze dell’attività, la soluzione si presta a diverse tipologie di utilizzo.

La soluzione è così caratterizzata:

Mensole con portata 5 TonAnello antincendioDue localiRiscaldamento e condizionamento assenti Altezza capannone 9 mTre campateSei portoni (altezza portone 4,50 m – larghezza portone 6 m)Impianti: illuminazione ed elettricoUscita e luci d’emergenzaProprietà recintataSpogliatoio con due docceTre servizi igienici

LIBERO SUBITO

UBICAZIONE E CONTESTO

Somaglia è un comune italiano di 3 825 abitanti della provincia di Lodi in Lombardia. Il comune di Somaglia è attraversato dalla SS 9 Emilia che collega Piacenza a San Donato Milanese (MI) . È inoltre attraversato dall'Autostrada A1.

Mostra tutto

Nelle vicinanze

Trasporto pubblico Trasporto pubblico
Trasporto pubblico
1,6 Km
Ricariche auto elettriche Ricariche auto elettriche
Distributore Eni
2,7 Km
Lidl Casalpusterlengo
2,8 Km
Scuole Scuole
Scuole
650 m
Scuola elementare Enrico Fermi
2,8 Km
Farmacia Farmacia
Farmacia Davidi
990 m
Farmacia Comunale 2
2,7 Km
Farmacia Santa Clotilde
2,8 Km
Ospedali Ospedali
Ospedale Civico Rossi
2,8 Km
Supermercati Supermercati
Sigma
2,6 Km
A & O
2,7 Km
Famila
3,0 Km
Negozi Negozi
Alimentari Degani
1,5 Km
Bar Bar
Il Peperoncino
150 m
Bar Al Semaforo
520 m
Bar San Martino
1,7 Km
Bar
3,0 Km
Ristoranti Ristoranti
da Rino
900 m
Somaglia est
1,1 Km
La Piazzetta
2,4 Km
Centro Nautico Somaglia
2,5 Km
Cochera Blanca
2,6 Km
Mostra tutto

Caratteristiche

Rif.:
61122709
Piano:
Su più livelli di 1
Totale piani:
1
Condizionamento:
Assente
Ascensore:
No
Riscaldamento:
Assente
Mostra tutto
Prezzo Prezzo
€ 1.200.000
Rata mutuo Rata mutuo
€ 5.531 / mese
Spese annue Spese annue
€ 0
Anche in affitto a
Proponi il tuo prezzoProponi il tuo prezzo

Altre caratteristiche

Descrizione dei locali
Bagno Con Finestra

Classe Energetica

F
F
F
F
F
F
F
F
F
Anno di costruzione:
1990
Riscaldamento:
Assente

Ti interessa visionare l'immobile?

Fissa un appuntamento  Fissa un appuntamento

Richiedi informazioni

* Questi campi sono obbligatori

Calcola il tuo mutuo

Semplice e senza impegno
Anticipo

( % )
Mutuo

( % )

pochi semplici passi

inserisci i tuoi dati
Questionario completato
Grazie per aver richiesto un appuntamento senza impegno con un nostro Consulente del Credito e Assicurativo.

Hai inserito correttamente tutti i dati necessari e a breve riceverai una e-mail con un link da convalidare per inviare i tuoi dati.
Affiliato
Industriale Crema Srl
Viale Alcide De Gasperi, 57/A 26013 Crema (CR)

Il nostro staff


  • Cristiano Cerioli
    Collaboratore

  • Luca Corno
    Collaboratore

  • Matteo Ferrari
    Collaboratore

  • Nicola Gervasi
    Affiliato

  • Andrea Gatti
    Affiliato

  • Toni Koshaj
    Collaboratore

  • Salwa El Fares
    Collaboratrice

  • Jacopo Piloni
    Collaboratore

  • Federica Scarpa
    Coordinatrice

  • Valentina Sozzi
    Coordinatrice

  • Claudio Valecci
    Affiliato

  • Francesca Lanzini
    Affiliata
Viale Alcide De Gasperi, 57/A 26013 Crema (CR)
Zona: Crema
Mostra su mappa
Affiliato
Industriale Crema Srl
Viale Alcide De Gasperi, 57/A 26013 Crema (CR)

2025 Tecnocasa Franchising S.p.A. - P. IVA 08365160152 - Via Monte Bianco 60/A 20089 Rozzano (MI). Ogni agenzia ha un proprio titolare ed è autonoma. Privacy policy | Policy utilizzo | Cookie policy