Capannone in affitto

Soncino, Via Fiorano - Gallignano
4 locali 4 locali
1600 Mq 1600 Mq
4 bagni 4 bagni

Capannone in affitto

Soncino, Via Fiorano - Gallignano

Descrizione annuncio

PARTICOLARITA' E DESCRIZIONE


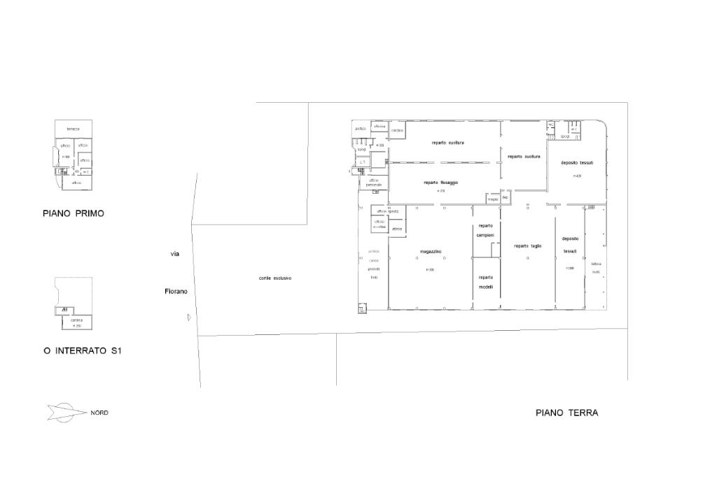
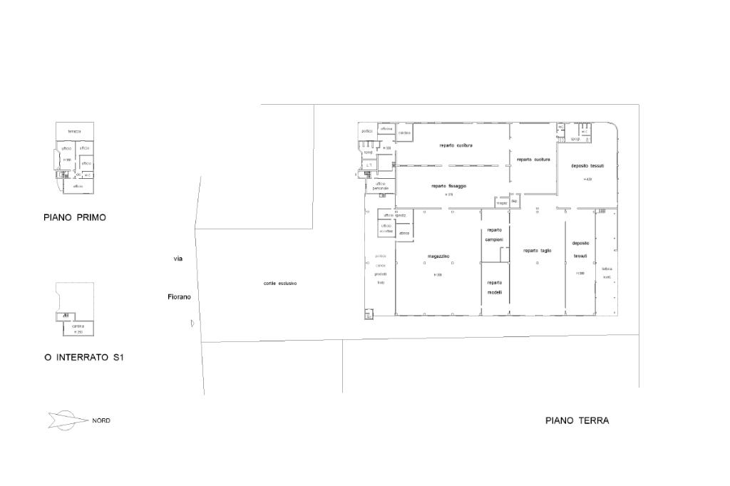
Proponiamo capannone posto al piano terra completamente recintato, privo di pilastri e dotato di zona uffici posta al piano primo, oltre ad ampia area esterna, ubicato a Gallignano (frazione di Soncino), precisamente in Via Fiorano. Situato in una posizione strategica, questo capannone offre un'area spaziosa e funzionale.

Caratteristiche principali:

- Superficie lotto lorda: 2.600 mq circa;

- Superficie capannone: 1.600 mq circa (posti al piano terra e divisi in quattro blocchi);

- Superficie uffici: 200 mq circa (posti al piano primo);

- Superficie area esterna (in comune): 1000 mq circa;

- Altezza sotto trave: minimo 3,80 - massimo 5,40 m;

- Reception;

- Proprietà recintata;

- Un accesso carraio;

- Un portone : 3,50 x 3,60

- Tre servizi igienici;

- Doccia e spogliatoio;

- Mensa;

- Completo di tutti gli impianti;

- Impianto allarme;

- Uscite d'emergenza;

- Porta tagliafuoco;

- Cablato;

- Posti auto esterni.

LIBERO SUBITO

UBICAZIONE E CONTESTO

Soncino è un comune italiano di 7 500 abitanti della provincia di Cremona, in Lombardia. Dal 2004 si fregia del titolo di città.

Il territorio è attraversato dalle strade provinciali ex SS235 'Di Orzinuovi', ex SS 498 'Soncinese' , SP 39 Soncino-Calcio e SP 44 Soncino- Casaletto di Sopra.

Mostra tutto

Caratteristiche

Rif.:
60954252
Piano:
Terra di 2
Totale piani:
2
Posti auto:
10
Condizionamento:
Autonomo
Ascensore:
No
Mostra tutto
Prezzo Prezzo
€ 3.500 / mese
Spese annue Spese annue
€ 0
Anche in vendita a

Altre caratteristiche

Descrizione dei locali
Bagno antibagno

Classe Energetica

Questo immobile è esente da classe energetica
Anno di costruzione:
1969
Riscaldamento:
Autonomo
Tipo impianto:
Ad aria
Tipo alimentazione:
Aria

Ti interessa visionare l'immobile?

Fissa un appuntamento  Fissa un appuntamento

Richiedi informazioni

* Questi campi sono obbligatori
Affiliato
Industriale Crema Srl
Viale Alcide De Gasperi, 57/A 26013 Crema (CR)

Il nostro staff


  • Cristiano Cerioli
    Collaboratore

  • Luca Corno
    Collaboratore

  • Matteo Ferrari
    Collaboratore

  • Nicola Gervasi
    Affiliato

  • Andrea Gatti
    Affiliato

  • Toni Koshaj
    Collaboratore

  • Salwa El Fares
    Collaboratrice

  • Jacopo Piloni
    Collaboratore

  • Federica Scarpa
    Coordinatrice

  • Valentina Sozzi
    Coordinatrice

  • Claudio Valecci
    Affiliato

  • Francesca Lanzini
    Affiliata
Viale Alcide De Gasperi, 57/A 26013 Crema (CR)
Zona: Crema
Mostra su mappa
Affiliato
Industriale Crema Srl
Viale Alcide De Gasperi, 57/A 26013 Crema (CR)

2025 Tecnocasa Franchising S.p.A. - P. IVA 08365160152 - Via Monte Bianco 60/A 20089 Rozzano (MI). Ogni agenzia ha un proprio titolare ed è autonoma. Privacy policy | Policy utilizzo | Cookie policy