Negozio in vendita

Soncino, Via Padre Mario Zanardi
€ 120.000
1 locale 1 locale
48 Mq 48 Mq
1 bagno 1 bagno

Negozio in vendita

Soncino, Via Padre Mario Zanardi

Descrizione annuncio

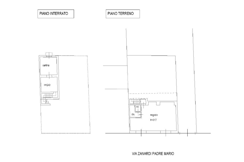
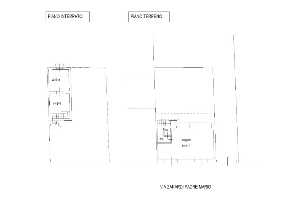
In una posizione ben visibile e di forte passaggio, proponiamo in vendita locale commerciale di circa 48 mq, ideale per chi cerca uno spazio funzionale, luminoso e facilmente adattabile a diverse attività. Le due vetrine fronte strada e la disposizione open space rappresentano il vero punto di forza dell’immobile, garantendo massima visibilità e versatilità.

Caratteristiche dell’immobile

Superficie commerciale: circa 48 mq

Disposizione open space

Altezza soffitti: 3 metri

Due vetrine fronte strada

Un locale principale

Servizio igienico

Deposito di circa 20 mq

Riscaldamento autonomo

Predisposizione per impianto di climatizzazione

Porta blindata

Infissi in alluminio

Impianto elettrico e di illuminazione

Luci di emergenza

Internet a banda larga

Immobile cablato

Stato di manutenzione: buono

Ubicazione e contesto

L’immobile è situato a Soncino, in Via Padre Mario Zanardi, in un contesto urbano ben servito e facilmente accessibile. La posizione fronte strada assicura ottima visibilità e facilità di accesso sia pedonale che veicolare. La zona è caratterizzata dalla presenza di attività commerciali, servizi di prima necessità e collegamenti comodi con le principali arterie del paese, rendendo la soluzione particolarmente adatta a negozi, studi professionali o attività di servizio.

Mostra tutto

Nelle vicinanze

Trasporto pubblico Trasporto pubblico
Trasporto pubblico
910 m
Scuole Scuole
Istituto Comprensivo Giovanni XXIII - Scuola Secondaria di Primo Grado
190 m
Istituto D'Istruzione Superiore G. Cossali
2,7 Km
Supermercati Supermercati
Coop
120 m
Bar Bar
Jigger Food and Drink
50 m
River Club
1,6 Km
Ristoranti Ristoranti
Antica Rocca
230 m
Ristorante Pizzeria ADAMO
260 m
Enoteca i 5 Frati - Vineria, Cocktail, Ristorante
470 m
Molino San Giuseppe 1228 - Borgo Dei Sapori
510 m
La Cantina
980 m
Mostra tutto

Caratteristiche

Rif.:
61173100
Piano:
Terra di 2
Totale piani:
2
Condizionamento:
Predisposizione impianto
Ascensore:
No
Riscaldamento:
Autonomo
Mostra tutto
Prezzo Prezzo
€ 120.000
Rata mutuo Rata mutuo
€ 561 / mese
Spese annue Spese annue
€ 0
Proponi il tuo prezzoProponi il tuo prezzo

Altre caratteristiche

Descrizione dei locali
Bagno antibagno

Classe Energetica

Questo immobile è esente da classe energetica
Anno di costruzione:
1980
Riscaldamento:
Autonomo
Tipo impianto:
Ad aria
Tipo alimentazione:
Aria

Ti interessa visionare l'immobile?

Fissa un appuntamento  Fissa un appuntamento

Richiedi informazioni

Clicca su Leggi per aprire l'informativa
* Questi campi sono obbligatori

Calcola il tuo mutuo

Semplice e senza impegno
Anticipo

( % )
Mutuo

( % )

pochi semplici passi

inserisci i tuoi dati
Questionario completato
Grazie per aver richiesto un appuntamento senza impegno con un nostro Consulente del Credito e Assicurativo.

Hai inserito correttamente tutti i dati necessari e a breve riceverai una e-mail con un link da convalidare per inviare i tuoi dati.
Affiliato
Industriale Crema Srl
Viale Alcide De Gasperi, 57/A 26013 Crema (CR)

Il nostro staff


  • Cristiano Cerioli
    Collaboratore

  • Tommaso Fiorentino
    Collaboratore

  • Nicola Gervasi
    Affiliato

  • Andrea Gatti
    Affiliato

  • Salwa El Fares
    Collaboratrice

  • Jacopo Piloni
    Collaboratore

  • Federica Scarpa
    Coordinatrice

  • Valentina Sozzi
    Coordinatrice

  • Claudio Valecci
    Affiliato

  • Francesca Lanzini
    Affiliata
Viale Alcide De Gasperi, 57/A 26013 Crema (CR)
Zona: Crema
Mostra su mappa
Affiliato
Industriale Crema Srl
Viale Alcide De Gasperi, 57/A 26013 Crema (CR)

2026 Tecnocasa Franchising S.p.A. - P. IVA 08365160152 - Via Monte Bianco 60/A 20089 Rozzano (MI). Ogni agenzia ha un proprio titolare ed è autonoma. Privacy policy | Policy utilizzo | Cookie policy